
支援総額
目標金額 400,000円
- 支援者
- 43人
- 募集終了日
- 2017年3月29日
残りあと3日 谷中でベイクショップを出す意味
このクラウドファンディングも
残りあと3日となりました。
谷中という地域についてとても想いのある方が多く、
多数のご支援を頂いております。
谷根千という地域名称は今から30年ほど前、
地域雑誌「谷根千」というのがあり、
今ではとても有名になった当時の主婦3人が
地域のことを細かくヒアリングをして、
小冊子にして販売し始めたのがきっかけです。
地域雑誌「谷中 根津 千駄木」既刊一覧↓
http://www.yanesen.net/archives/backnumber/
今では地域の方もこの名称を受け入れ、
観光の方とも自然に接するようになりましたが、
私が知る10年ほど前はまだギクシャクしていました。
人の家の前を一眼レフを持って撮られたら
それは気持ちも良くないかもしれません。
それから長い時間をかけて、
今回の岩本さんのように外から地域に定着して、
そこで頑張る様子を地域の方が見て、
そして段々馴染んでいくのだと思います。
のこり日数の少ないタイミングですが、
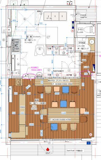
現在工事中の平面図をアップ致します。
(広く見えますが実際はコンパクトです)

ベイクショップのベイクとは「焼く」という意味。
図面左上に見える大きな四角が
ベーカリーオーブンです。
これ↓

そして中央に見える二つの足が広がった形が
小麦粉を練るミキサーです。
これ↓
両方の写真とも実際に岩本さんが使う機材です。
(一緒に工場まで行って写真を撮ってきました)
新着情報のこの回でもお伝えしましたが↓
小麦粉はとても繊細で、
種類や等級、産地によっても様々で、
それの混ぜ方や練り方、寝かし方、焼き方によって、
沢山の調理が出来るのが小麦粉料理。
分かりやすいのがパンだったり、
クッキーだったり、ケーキだったり。
今回のリターンにもあるマヌシュートレンだったり↓
小麦粉という粉から色々な焼かれた食材を並べて、
それをテイクアウトして頂いたりイートインでも食べられたり。
なので今回の岩本さんのお店には
「菓子製造業」と「飲食業」の2つが合わさっています。
(保健所の申請もちょっと大変でした)
図面上の製造部分が少し余裕があるのは、
将来新しい機材を入れる為です。
「クロワッサン」などを作ろうと思ったら、
生地を伸ばす「シーター」というものが必要になります。
今回はお店を作るのにとても沢山のお金が掛かっている為、
とてもそこまでは手が届かず、
それは将来の楽しみに取ってあります。
谷中という地域は観光化が進み、
外からどんどん人が訪れています。
ただし地域の方もまだまだ多く、
そんなソトとナカのバランスが今後は大事になってきます。
このお店の大家さんも谷中という地域をとても愛していて、
岩本さんにとても色々アドバイスを頂いています。
ベイクショップという形態はとても新しい形態ですが、
それが地域的な歴史のある谷中で生まれ、
そして観光の方も、地域の方も沢山訪れる
そんなお店になればと思っています。
一度心臓が止まった岩本さん
「これからの後輩たちの為に」
慣れない地域での開業はとても大変です。
このクラウファンディング達成もあと少しです。
みなさまご支援のほど引き続きよろしくお願い申し上げます。
リターン
3,000円

気持ちを込めたお礼のお手紙
今回のプロジェクトのご賛同頂いた方で、お気持ちのこもったお手紙でお礼をさせて頂ける方は、こちらのリターンをさせて頂きたいと思います。
お店がオープンして落ち着いた7月ごろを目安にお送りさせて頂きます。
(メールまたは郵送で印刷または直筆になります)
*写真はイメージです
- 申込数
- 4
- 在庫数
- 制限なし
- 発送完了予定月
- 2017年7月
10,000円

食事券(グランドオープン直前発送)&特選焼き菓子ギフトボックス
1,500円×5回分の食事券をグランドオープン直前に発送させて頂きます。
お知り合いとご一緒にご来店頂いても、ご本人様で5回お使いになっても大丈夫です。
また、お店特選の焼き菓子をギフトボックスにして、発送させて頂きます。(6月下旬から7月発送予定またはお店にて)
*写真はイメージです
- 申込数
- 21
- 在庫数
- 制限なし
- 発送完了予定月
- 2017年7月
3,000円

気持ちを込めたお礼のお手紙
今回のプロジェクトのご賛同頂いた方で、お気持ちのこもったお手紙でお礼をさせて頂ける方は、こちらのリターンをさせて頂きたいと思います。
お店がオープンして落ち着いた7月ごろを目安にお送りさせて頂きます。
(メールまたは郵送で印刷または直筆になります)
*写真はイメージです
- 申込数
- 4
- 在庫数
- 制限なし
- 発送完了予定月
- 2017年7月
10,000円

食事券(グランドオープン直前発送)&特選焼き菓子ギフトボックス
1,500円×5回分の食事券をグランドオープン直前に発送させて頂きます。
お知り合いとご一緒にご来店頂いても、ご本人様で5回お使いになっても大丈夫です。
また、お店特選の焼き菓子をギフトボックスにして、発送させて頂きます。(6月下旬から7月発送予定またはお店にて)
*写真はイメージです
- 申込数
- 21
- 在庫数
- 制限なし
- 発送完了予定月
- 2017年7月

車いすユーザーの社会参加を応援する!WheeLog!サポーター
- 総計
- 43人

大好きな松山に期間限定クリスマスカフェをOPEN
- 現在
- 83,500円
- 支援者
- 18人
- 残り
- 9日

【頑張る姉を応援したい!】オーストラリアで日本食レストランの開業
- 現在
- 1,000円
- 支援者
- 1人
- 残り
- 39日

早稲田大学野球部 世界へ!アメリカ名門大学と究める文武両道への挑戦
- 現在
- 12,167,000円
- 寄付者
- 345人
- 残り
- 17日

八王子わんにゃんシェルター運営サポーター募集中!!
- 総計
- 25人

清瀬市から未来へ— 幻のロマン客車「夢空間」の鼓動を、再び。
- 現在
- 2,329,064円
- 支援者
- 115人
- 残り
- 9日

夢育てメンバー & 夢育て農園メンバー 募集
- 総計
- 57人












