
支援総額
目標金額 3,000,000円
- 支援者
- 188人
- 募集終了日
- 2022年11月25日
カプセル外壁のアスベスト再調査のため検体採取を行いました
昨日、ひさしぶりに7個のカプセルを置く北関東の倉庫へ行ってきました。今回、倉庫へ向かった目的は、1つ目がカプセル外壁のアスベスト再調査、2つ目がパーツリスト作成のための調査、3つ目はアスベスト再除去に向けて調達した集じん機を倉庫に置いたことです。
今回の新着情報は、アスベスト再調査のために行った検体採取の報告です。

カプセル外壁のアスベスト調査について
上記写真は、2023年9月24日、カプセル外壁にアスベストが含有されているかどうかのアスベスト再調査のためにカプセルA606の外壁を、代表いしまるあきこが検体を採取した様子です。私はこの調査を自ら行えるように「一般建築物石綿含有建材調査者」を2023年1月に取得しています。詳しくは、2023年3月2日の新着情報「アスベスト再除去の必要性と資格取得」をご覧ください。
調査者が検体を採取し分析機関に送ることで、アスベスト含有の分析調査を行うことができます。私自身が採取を行い、分析機関に検体を送りました。分析結果を待ちたいと思います。今回、現時点で最も精度の高い「定量分析」で「電子顕微鏡(SEM-EDX)」での分析を依頼しました。その分、一般的なものと比較して費用は高いですが、正確な数字を把握したいと考えています。
3月の新着情報と内容が少しかぶりますが、再度、何をしているのかを詳しく書きます。
「ケニテックス」について
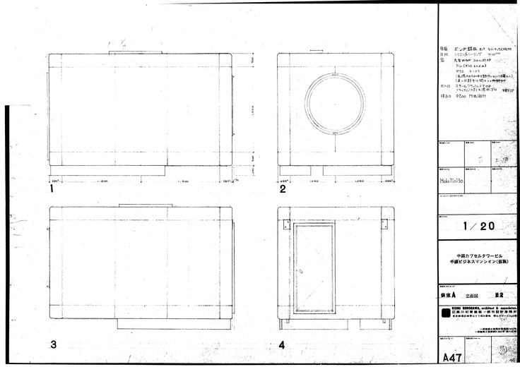
竣工当時のカプセルの図面では、カプセルの外壁は「外板 ボンデ鋼板 PL1.2 ケニテックス吹付」と記載があります。下記は縮尺1/20の「個室A 立面図」です。Aタイプのカプセルの外観を表す図面です。
「ケニテックス」は砂壁状の吹付塗料で、1970年代当時に使用された物にはアスベストが含有されていることが知られています。
この図面は、最終所有企業から私たち中銀カプセルタワービルA606プロジェクトが譲り受けた「中銀カプセルタワービル 中銀ビジネスマンシオン(仮称) 新築工事設計図」の写しの中の1枚です。


ところで、2017年3月に中銀カプセルタワービル管理組合法人によって「中銀カプセルタワーアスベスト含有調査」が行われ、その結果、カプセル外壁にアスベスト含有は無しでした。
※調査・分析の会社名、担当個人名、それを特定できそうな番号は黒塗りにしています。この資料も私たちがカプセルを譲り受けるにあたって、2022年4月に最終所有企業から写しを譲り受けています。


資料にある「定性分析」はアスベスト(石綿)の有無を調べる調査です。今回、あらたに依頼した「定量分析」は含有率まで調べる分析方法で、「定性分析」よりも「定量分析」のほうが、より精度の高い分析方法です。
2017年の調査箇所は「306号室 外壁 外装材」とのことで、A棟かB棟かは不明ですが、3階の屋上部分から調査者の手が容易に届く範囲で「306号室」外壁の検体採取が行われたのではないかと考えられます。
石綿分析結果報告書でも「ただし、本分析の結果は、入手した資料の範囲に限定させていただきます。」とありますので、採取できなかった(手が届かなかった)ところについては分析できていない可能性は十分あり得ます。
下記は、2022年3月末に、中銀カプセルタワービルA606プロジェクトがドローンで撮影した動画からの切り出しです。二枚目の右下がカプセルA306です。


カプセルA306の内部は下記のような状態でした。解体直前の2022年4月、中銀カプセルタワービルA606プロジェクト撮影。


下記は、3階屋上から撮影したカプセルB306です。2022年3月、中銀カプセルタワービルA606プロジェクト撮影。

カプセルB306の内部は下記のような状態でした。2022年4月、中銀カプセルタワービルA606プロジェクト撮影。


2017年の調査結果から、「外壁にはアスベスト含有なし」という扱いで解体工事も行われました。
下記写真は2022年4月12日に撮影した「建築物等の解体等の作業に関するお知らせ」です。中銀カプセルタワービルの解体工事が始まるにあたって掲示されたものです。 ※個人や企業名が特定される情報は黒塗りにしています。
私たちも外壁にはアスベストは無いということで安心していました。
※カプセル内の吹付アスベスト(アモサイト)が物理的に取り除ききれず残留せざるを得ない、というのは、解体が始まってから分かった、また別の話しです。
※2枚目の、含有あり、アモサイトの含有率は70%以上で、大変高い数値がでていました。現在の法律では含有率0.1%以上で対策が必要です。

建物解体が進み、カプセルを譲り受けた後に、カプセルの外壁の仕上げが面によって違うことに気付きました。
カプセルA606で言うと、玄関側の外壁と玄関横の棚があった外壁の仕上げが他とは違いました。それらは、カプセルとタワーの間、カプセルとカプセルの間で、人の手が届かないような場所です。すでに剥がれ落ちている箇所も多くあります。
丸窓側や道路に面していた外壁。白系の樹脂塗料っぽい仕上げになっています。


玄関側の外壁。砂壁状の仕上げが残っています。

過去に外壁を修繕した際、手が届かなかったところには「ケニテックス」が残っているのではないだろうかと考え、再分析の必要性を感じ、今回の検体採取、分析依頼となりました。
1検体あたり3箇所を採取するのが基本的な採取方法ですので、玄関側の外壁から3箇所を採取しました。
1箇所目は、玄関左横の細い外壁です。

採取箇所を湿潤させ、袋で覆ってから、スクレーパー等で削り、袋に検体を落とします。
※検体を入れるのはジップロックのような密閉式のビニル袋、調査後の飛散防止用の固着液もスプレーのりで代用できるとのことで、購入しやすいそれらを使用しました。
2箇所目は玄関右側、外壁の中心部分。すでに外壁の仕上げの多くが剥がれ落ちている箇所です。

3箇所目は、玄関側外壁の丸窓に近い角です。ここは他の2箇所とは違う質感の塗装が表面にされています。過去の補修時に塗られた箇所で、キワにあたる箇所ではないかと考えています。下地に「ケニテックス」が残っているかもしれない、という前提で採取しました。

3箇所から採取しました。
今回は、「旧中銀カプセルタワービル カプセルA606 玄関側 外壁1〜3」ということで、分析調査を依頼しました。
外壁にケニテックスが残り、分析結果が「アスベスト含有」で「XX%」という場合、アスベストに配慮した状態で全7個のカプセル外壁塗装を全て除去します。外壁塗装は「レベル3」という扱いで除去方法は改めて検討します。
ケニテックスが無いと分かった場合、それはそれで良かった、ホッという状態です。元の塗装をどこまで残すかについては、どのように修繕するかも合わせて検討します。
いずれにしても、カプセル内部に残留している吹付アスベスト(アモサイト)は除去します。アスベストが残っていたり、ボロボロの外壁のままでは、50年後までカプセルを安心して残せません。
私たち中銀カプセルタワービルA606プロジェクトとしては、オリジナルをもとにパーツを再生産して交換することを検討しています。
ほかの作業については、追ってご報告を致します。
私たち中銀カプセルタワービルA606プロジェクトの活動を引き続き応援よろしくお願い致します。
2023年9月25日
中銀カプセルタワービルA606プロジェクト代表いしまるあきこ(石丸彰子)
リターン
3,000円+システム利用料
A606プロジェクト応援A(お気持ちのみ)
記念品などをお届けしないかわりに、いただくご支援をできるだけ多くプロジェクトのために使用させていただく コースです。
ーーーーーーーーーー
●御礼のメール
- 申込数
- 23
- 在庫数
- 制限なし
- 発送完了予定月
- 2022年12月
5,000円+システム利用料

カプセルA606+共用部のオンライン見学会ご招待(2022年3月末の解体直前の記録映像より)
●御礼のメール
●カプセルA606+共用部オンライン見学会(期間限定アーカイブ有)
・共用部は1階外部・ロビー・6階ブリッジ・階段室です。
代表いしまるあきこが、解体直前の2022年3月末に、みなさまをカプセルA606へご案内する動画を撮影しました 。
当時、現地開催を検討していましたが、裏の増築部の解体が始まっていたことによる粉じんやアスベストの影響を鑑み、実施を断念しました。そのため、映像で記録を残しました。
2022年3月末にはA606室内にベッド・スツールなどもフルレストア(復元)していたため、その解説もしています 。
今回の映像は前回のクラウドファンディングのリターンとして2021年8月に実施したオンライン見学会とかぶる内容もありますが、より細かな内容でお伝えし、雰囲気も変わる予定です。
撮影日:2022年3月31日
撮影・編集:和久井幸一
企画:いしまるあきこ
※2023年1月末までに開催予定、日程などの詳細を追ってご案内いたします。
- 申込数
- 22
- 在庫数
- 制限なし
- 発送完了予定月
- 2023年1月
3,000円+システム利用料
A606プロジェクト応援A(お気持ちのみ)
記念品などをお届けしないかわりに、いただくご支援をできるだけ多くプロジェクトのために使用させていただく コースです。
ーーーーーーーーーー
●御礼のメール
- 申込数
- 23
- 在庫数
- 制限なし
- 発送完了予定月
- 2022年12月
5,000円+システム利用料

カプセルA606+共用部のオンライン見学会ご招待(2022年3月末の解体直前の記録映像より)
●御礼のメール
●カプセルA606+共用部オンライン見学会(期間限定アーカイブ有)
・共用部は1階外部・ロビー・6階ブリッジ・階段室です。
代表いしまるあきこが、解体直前の2022年3月末に、みなさまをカプセルA606へご案内する動画を撮影しました 。
当時、現地開催を検討していましたが、裏の増築部の解体が始まっていたことによる粉じんやアスベストの影響を鑑み、実施を断念しました。そのため、映像で記録を残しました。
2022年3月末にはA606室内にベッド・スツールなどもフルレストア(復元)していたため、その解説もしています 。
今回の映像は前回のクラウドファンディングのリターンとして2021年8月に実施したオンライン見学会とかぶる内容もありますが、より細かな内容でお伝えし、雰囲気も変わる予定です。
撮影日:2022年3月31日
撮影・編集:和久井幸一
企画:いしまるあきこ
※2023年1月末までに開催予定、日程などの詳細を追ってご案内いたします。
- 申込数
- 22
- 在庫数
- 制限なし
- 発送完了予定月
- 2023年1月

ぬるぬるのお引越|万博・落合陽一 null²パビリオン次なる場所へ
#ものづくり
- 現在
- 222,216,000円
- 支援者
- 13,069人
- 残り
- 28日

タイのDD51北斗星色を守り、綺麗な姿で新天地での活躍を見たい
- 現在
- 585,000円
- 支援者
- 74人
- 残り
- 7日

緊急支援|フィリピン地震へのご支援を
- 現在
- 1,628,000円
- 寄付者
- 222人
- 残り
- 9日

【緊急支援|大分市 大規模火災へのご支援を】
#医療・福祉
- 現在
- 4,033,000円
- 寄付者
- 496人
- 残り
- 40日

緊急支援|被災重なるフィリピン、台風25号被害へのご支援を
- 現在
- 571,000円
- 寄付者
- 65人
- 残り
- 35日

東京国立博物館|価値ある文化財を救い出す。源氏物語図屏風、修理へ
#伝統文化
- 現在
- 61,845,000円
- 寄付者
- 2,866人
- 残り
- 28日

救う命を選ばない。どんな犬猫も保護し続け福岡の里親さんを増やしたい
#動物
- 現在
- 3,212,000円
- 支援者
- 303人
- 残り
- 14時間
現役美容師の挑戦!外出できないお年寄りを訪問美容で元気に!
- 支援総額
- 448,000円
- 支援者
- 61人
- 終了日
- 6/28

千葉県四街道の荒れたたんぼを再生させ、秋に稲穂を実らせたい!
- 支援総額
- 340,000円
- 支援者
- 31人
- 終了日
- 4/23
障害を持っても「仕事」をしたい人の力になりたい!
- 支援総額
- 521,000円
- 支援者
- 65人
- 終了日
- 2/14
タンザニアの無医村へ薬を アフリカ版「置き薬」プロジェクト
- 支援総額
- 2,526,000円
- 支援者
- 187人
- 終了日
- 12/22
仙台に、コーヒーロースタリー&カフェ「COFFEE HAUS」オープン!
- 支援総額
- 1,323,000円
- 支援者
- 153人
- 終了日
- 12/7

千葉県の竹林を整備して大人から子供達が楽しめる村を作りたい!
- 支援総額
- 685,000円
- 支援者
- 36人
- 終了日
- 12/22

能登豪雨 二度の災害に負けず 輪島で カードショップを再建したい
- 支援総額
- 325,000円
- 支援者
- 37人
- 終了日
- 1/6








