支援総額
目標金額 15,000,000円
- 支援者
- 309人
- 募集終了日
- 2024年5月15日
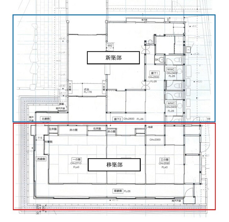
移築部分と新築部分
クラウドファンディング最終章、2月5日(水)23時の終了まで残り2日となりました。
重ねてのご支援くださる方も多く、本当に有難い限りです。
本当にありがとうございます。
先日工事の進捗報告で現在の写真を掲載させていただきましたが、建物の全体図面をご紹介したことがなかったと思いますので、改めてご紹介させていただきます。
今回の工事は、水月ホテル鷗外荘から移築する部分と、それだけですと一軒の建物として完成しないため、新築部分を追加してます。
具体的には、こちらの図面のように移築部分、新築部分と分かれています。

移築部分は広間と縁側のみで、それ以外の玄関や台所、トイレ等は新築いたします。
もちろん森鴎外が住んでいた頃には、この広間だけでなく玄関や台所、トイレ、他にも部屋があったのだと思いますが、その後の変遷の中で改築され、残されていたのが広間と縁側でした。
それだけでは建物として活用が出来ないので、新築部分も併せて一軒の建物にしています。
そして、図面の移築部の左側と下側の面は全部縁側になっており、構造的にはとても弱いため、現在の耐震基準に合致するよう構造に鉄骨を組み込んだり、縁側の建具に工夫を凝らしたりと構造強化をはかっています。
そして構造強化をしたことで、もともと使っていた材が使えない部分も出てきました。
材自体が傷んでいて使用出来ないケースと、構造的に使用出来ないケースと両方ありますが、残ってしまった木材や建具があります。
6mある大きな丸太や柱材、縁側の建具、雨戸などが残っています。
その内、明治時代の建築当初のものではないものもありまして、選別した上で、当時のものはなるべく何かに再利用出来ないかと活用方法を検討中です。
それでは、2月5日(水)23時終了まであと2日、引き続きご支援よろしくお願いいたします。
リターン
5,000円+システム利用料

お気持ち応援コース(5千円)
●お礼のメール
返礼品をお送りしない代わりにより多くの金額をプロジェクトに活用させていただきます。
※お一人様複数口のご支援も可能です。
- 申込数
- 83
- 在庫数
- 制限なし
- 発送完了予定月
- 2024年7月
10,000円+システム利用料

クラウドファンディング限定切り絵御朱印・つつじ苑入苑券2枚コース
●クラウドファンディング限定切り絵御朱印
●つつじ苑入苑券2枚(有効期限なし)
つつじまつりは毎年4月に実施しています。早咲き・遅咲きがあり、長い期間楽しめます。
※有効期限はございませんが、入苑されない場合でもご返金できかねますのでご注意ください。
●お礼のメール
●根津神社HPへのご芳名掲載(希望制)
※お一人様複数口のご支援も可能です。
- 申込数
- 89
- 在庫数
- 制限なし
- 発送完了予定月
- 2024年7月
5,000円+システム利用料

お気持ち応援コース(5千円)
●お礼のメール
返礼品をお送りしない代わりにより多くの金額をプロジェクトに活用させていただきます。
※お一人様複数口のご支援も可能です。
- 申込数
- 83
- 在庫数
- 制限なし
- 発送完了予定月
- 2024年7月
10,000円+システム利用料

クラウドファンディング限定切り絵御朱印・つつじ苑入苑券2枚コース
●クラウドファンディング限定切り絵御朱印
●つつじ苑入苑券2枚(有効期限なし)
つつじまつりは毎年4月に実施しています。早咲き・遅咲きがあり、長い期間楽しめます。
※有効期限はございませんが、入苑されない場合でもご返金できかねますのでご注意ください。
●お礼のメール
●根津神社HPへのご芳名掲載(希望制)
※お一人様複数口のご支援も可能です。
- 申込数
- 89
- 在庫数
- 制限なし
- 発送完了予定月
- 2024年7月

東京国立博物館|価値ある文化財を救い出す。源氏物語図屏風、修理へ
#伝統文化
- 現在
- 59,605,000円
- 寄付者
- 2,851人
- 残り
- 29日

国立科学博物館マンスリーサポーター|地球の宝を守りつづける
- 総計
- 679人

吉村作治エジプト調査隊 太陽の船 大エジプト博物館展示へ【第一弾】
- 現在
- 5,870,000円
- 支援者
- 153人
- 残り
- 67日

地域に息づく宝を次世代へ!鞆淵八幡神社の修復にご協力ください
- 現在
- 3,710,000円
- 支援者
- 206人
- 残り
- 22日

聖武天皇が建立し日本武尊を祀る礒崎神社本殿の修復にご支援ください!
- 現在
- 675,000円
- 支援者
- 121人
- 残り
- 21時間

埼玉おもちゃ美術館 子育て支援のためのバス増便にご支援を!
- 現在
- 145,000円
- 支援者
- 14人
- 残り
- 1日

ぬるぬるのお引越|万博・落合陽一 null²パビリオン次なる場所へ
#ものづくり
- 現在
- 216,904,000円
- 支援者
- 12,300人
- 残り
- 29日












