
支援総額
目標金額 3,000,000円
- 支援者
- 177人
- 募集終了日
- 2019年12月26日
醸造棟の紹介をします!
今回は、醸造棟になる建物の紹介をします。まずは外観から(上写真)
エントランスを入ると、つき当たりもガラス張りになっていてテラスがあります(下写真)

現在の中の感じです

醸造設備は、ブルーハウスが1,000ℓ、発酵タンクが1,000ℓ、2,000ℓ合わせて10本です

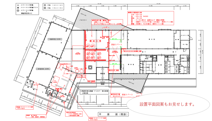
特別に配置平面図案もお見せします

最後に、試飲スペースです。奥にあるデッキに座って飲むビールは最高ですよ!


リターン
5,000円

国内産ドライホップをお試しコース
・ドライホップ(約25g)
※瓶一本分程度の量です。
※ビールはつかないコースになります。
よく揉んでビールを注いだグラスに浮かべると、ホップの香りが立ち、普通のビールでもHoppyな一味違う風味を楽しむことができます。
- 申込数
- 26
- 在庫数
- 172
- 発送完了予定月
- 2020年5月
10,000円

国内産ホップを使ったクラフトビールを楽しむコース
・【先行!販売引換券】クラフトビール3本分
・ドライホップ(約25g)
田村市で収穫した冷凍生ホップを使ったビール3種類と、ドライホップの詰め合わせ。ホップはよく揉んでビールを注いだグラスに浮かべると、ホップの香りが立ち、よりホップの風味を楽しむことができます。
写真はイメージです。
引換券はメールでお送りします。
<お酒、飲酒は20歳を過ぎてから>
※こちらのリターンは20歳未満の方はご支援いただけません
- 申込数
- 96
- 在庫数
- 103
- 発送完了予定月
- 2020年6月
5,000円

国内産ドライホップをお試しコース
・ドライホップ(約25g)
※瓶一本分程度の量です。
※ビールはつかないコースになります。
よく揉んでビールを注いだグラスに浮かべると、ホップの香りが立ち、普通のビールでもHoppyな一味違う風味を楽しむことができます。
- 申込数
- 26
- 在庫数
- 172
- 発送完了予定月
- 2020年5月
10,000円

国内産ホップを使ったクラフトビールを楽しむコース
・【先行!販売引換券】クラフトビール3本分
・ドライホップ(約25g)
田村市で収穫した冷凍生ホップを使ったビール3種類と、ドライホップの詰め合わせ。ホップはよく揉んでビールを注いだグラスに浮かべると、ホップの香りが立ち、よりホップの風味を楽しむことができます。
写真はイメージです。
引換券はメールでお送りします。
<お酒、飲酒は20歳を過ぎてから>
※こちらのリターンは20歳未満の方はご支援いただけません
- 申込数
- 96
- 在庫数
- 103
- 発送完了予定月
- 2020年6月

アフガニスタン冬の食糧支援!飢餓が心配される子どもたちに給食を!
- 現在
- 371,500円
- 寄付者
- 13人
- 残り
- 41日

吉村作治エジプト調査隊 太陽の船 大エジプト博物館展示へ【第一弾】
- 現在
- 5,870,000円
- 支援者
- 153人
- 残り
- 67日

ウガンダ貧困支援プロジェクトオーガニックコーヒー ニジイロビーンズ
- 現在
- 25,000円
- 支援者
- 5人
- 残り
- 10日

10周年記念事業「東北ゼブラ会議 2026」開催!東北創生の次代へ
- 現在
- 940,000円
- 支援者
- 33人
- 残り
- 31日

道北の街角に“あかり”をともす移動飲食店バスを未来につなぐ
- 総計
- 5人

311人募集中!|311子ども甲状腺がん裁判応援サポーター
- 総計
- 275人

開湯400年!お客様を温かくお迎えする歓迎標のリニューアルに挑戦!
- 現在
- 4,495,000円
- 支援者
- 233人
- 残り
- 22日














