
支援総額
目標金額 800,000円
- 支援者
- 60人
- 募集終了日
- 2023年9月10日
【これまでの設計案③】5/29リノベーション設計ミーティング
こんにちは!
大変遅くなってしまいましたが、これまでに行ってきた設計提案について紹介します。
5/29に行ったミーティングの設計案をご紹介します。
今回は前回のミーティングで頂いたアドバイスをもとに2つの案を提案し、その中の一つをご紹介します!
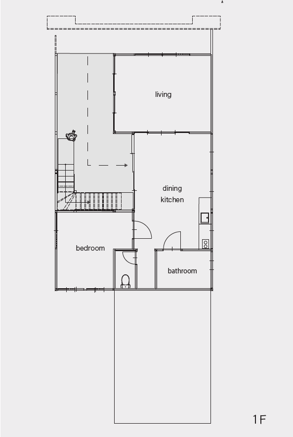
1F


南東から見た外観です。既存建物1Fの玄関+リビングを土間として外部に開放し、DIYスペース&地域の人々との交流スペースとします。土間に高さをつけることでステージのような印象を与え、学生が活動している様子が町へ広がっていくことを想定しています。

居住空間となる2Fへは外部の階段を上ってアクセスします。
2F


2Fは必要最小限の大きさの個室が3つ入り、それ以外の空間がすべて居住者の共用空間となります。
共用空間は一続きとなっていますが既存の柱をほとんど残しているため、パブリックな/プライベートな場所、日の当たる/当たらない場所といったように多様な空間が生まれ、入居者の過ごし方によって空間を選択できます。
南側は日の当たる開放的なコモンスペースとなっています。

逆に北側は直射日光が当たらずプライベート性を持っているので、少し落ち着いて過ごしたいときに活用することを想定しています。
このように既存の建物のポテンシャルを最大限に生かした空間の差別化は、この建物がどう使われてきたかという歴史に触れる機会を与えてくれたり、どのように手を加えればいいのかというDIYの指針となったり、様々な利点を生むことができます。「建物のもつポテンシャルを引き出す」ことの重要さと難しさを実感できたミーティングとなりました。
リターン
3,000円+システム利用料

【無償の愛コース】建築ズの感謝がつまった御礼のお手紙(3000円)
❖建築ズが心を込めて感謝のお手紙をお送りします!
※リターンをお届けしないかわりに、頂いたご支援金をサービス手数料を除いてすべてプロジェクト実施に活用させていただきます。
- 申込数
- 20
- 在庫数
- 制限なし
- 発送完了予定月
- 2023年10月
5,000円+システム利用料

【無償の愛コース】建築ズの感謝がつまった御礼のお手紙(5000円)
❖建築ズが心を込めて感謝のお手紙をお送りします!
※リターンをお届けしないかわりに、頂いたご支援金をサービス手数料を除いてすべてプロジェクト実施に活用させていただきます。
- 申込数
- 7
- 在庫数
- 制限なし
- 発送完了予定月
- 2023年10月
3,000円+システム利用料

【無償の愛コース】建築ズの感謝がつまった御礼のお手紙(3000円)
❖建築ズが心を込めて感謝のお手紙をお送りします!
※リターンをお届けしないかわりに、頂いたご支援金をサービス手数料を除いてすべてプロジェクト実施に活用させていただきます。
- 申込数
- 20
- 在庫数
- 制限なし
- 発送完了予定月
- 2023年10月
5,000円+システム利用料

【無償の愛コース】建築ズの感謝がつまった御礼のお手紙(5000円)
❖建築ズが心を込めて感謝のお手紙をお送りします!
※リターンをお届けしないかわりに、頂いたご支援金をサービス手数料を除いてすべてプロジェクト実施に活用させていただきます。
- 申込数
- 7
- 在庫数
- 制限なし
- 発送完了予定月
- 2023年10月

【市販薬の情報を手元へ!】クスリ早見帖プロジェクト
- 総計
- 44人

一橋大学ア式蹴球部と共に
- 総計
- 5人

大好きな松山に期間限定クリスマスカフェをOPEN
- 現在
- 91,500円
- 支援者
- 20人
- 残り
- 4日

箱根駅伝出場を目指す国立大学の本気の挑戦!サポーター募集中!
- 総計
- 135人

【立命館パンサーズ】日本一への道 遠征支援
- 現在
- 1,000,000円
- 支援者
- 82人
- 残り
- 18日

姪の支援をお願いします。妹が病気で最後の一年分の学費が払えません。
- 現在
- 412,000円
- 支援者
- 39人
- 残り
- 29日

千歳市立富丘中学校陸上部 全国中学駅伝への挑戦
- 現在
- 401,000円
- 支援者
- 61人
- 残り
- 8日











