寄付総額
目標金額 15,000,000円
- 寄付者
- 407人
- 募集終了日
- 2025年4月4日
進捗状況のご報告
更新が滞りがちでまことに申し訳ございません。
ここまでの流れは下記リンクよりご確認いただけます。
本プロジェクトの内容が新規建物の建設から既存建物のリフォームへとシフトしたことにつきましては、7月9日の活動報告でお知らせしたとおりです。
成立後の進捗状況のご報告 2025/07/09 | 困難を抱える女性に元気を。学び/遊び/作り場建設|かにた婦人の村(女性長期入所施設 かにた婦人の村 - クラウドファンディング READYFOR
また、その後の進捗については、8月6日の活動報告で一度お知らせしております。
設計打ち合わせを行いました。 2025/08/06 | 困難を抱える女性に元気を。学び/遊び/作り場建設|かにた婦人の村(女性長期入所施設 かにた婦人の村 - クラウドファンディング READYFOR
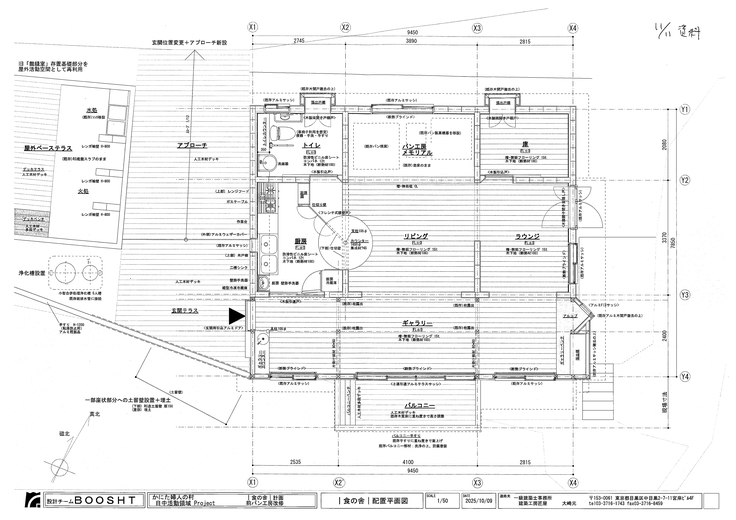
その後もほぼ月1回のペースで、大崎建築士との打ち合わせを重ねています。
この間、見積もりで大幅に予算オーバーの金額が出てきてしまったため、他の業者にも見積もりを依頼したり、工事の内容をさらに精査したりといったことがあり、さらに少し時間がかかってしまいました。
11月11日に行われた打ち合わせでは、工事内容の大枠はほぼ固まり、金額的にも何とか実現可能なラインへ落ち着いてきたところです。
設計内容については、打ち合わせを重ねるほど新たな意見や要望が出てきたりするのでさらに細部を詰める必要がありますが、そろそろ内容を固めて発注、契約、施工へと進んでいこうという段階になってきています。


引き続き進捗をお知らせしてまいりますので、応援よろしくお願いいたします。
ギフト
10,000円+システム利用料

入所者さんの工芸品コース
・感謝のメッセージ
・寄付金受領証明書
※寄付金受領証明書は、2025年9月までにお送りします。
・活動報告書(PDF)
・活動報告書にお名前掲載(希望者のみ)
・かにた婦人の村 オンライン見学会
※オンライン見学会は2026年3月までに実施いたします。詳細は実施の1ヶ月前を目処にご連絡いたします。
・かにた婦人の村の入所者さんがつくった工芸品
※工芸品は焼き物か手芸品のどちらかをお選びいただけます。どのような品物が届くかはお楽しみです。
- 申込数
- 82
- 在庫数
- 制限なし
- 発送完了予定月
- 2026年3月
1,000円+システム利用料

1,000円のご寄付
・感謝のメッセージ
・寄付金受領証明書
※寄付金受領証明書は、2025年9月までにお送りします。
・活動報告書(PDF)
・活動報告書にお名前掲載(希望者のみ)
・かにた婦人の村 オンライン見学会
※オンライン見学会は2026年3月までに実施いたします。詳細は実施の1ヶ月前を目処にご連絡いたします。
- 申込数
- 111
- 在庫数
- 制限なし
- 発送完了予定月
- 2026年3月
10,000円+システム利用料

入所者さんの工芸品コース
・感謝のメッセージ
・寄付金受領証明書
※寄付金受領証明書は、2025年9月までにお送りします。
・活動報告書(PDF)
・活動報告書にお名前掲載(希望者のみ)
・かにた婦人の村 オンライン見学会
※オンライン見学会は2026年3月までに実施いたします。詳細は実施の1ヶ月前を目処にご連絡いたします。
・かにた婦人の村の入所者さんがつくった工芸品
※工芸品は焼き物か手芸品のどちらかをお選びいただけます。どのような品物が届くかはお楽しみです。
- 申込数
- 82
- 在庫数
- 制限なし
- 発送完了予定月
- 2026年3月
1,000円+システム利用料

1,000円のご寄付
・感謝のメッセージ
・寄付金受領証明書
※寄付金受領証明書は、2025年9月までにお送りします。
・活動報告書(PDF)
・活動報告書にお名前掲載(希望者のみ)
・かにた婦人の村 オンライン見学会
※オンライン見学会は2026年3月までに実施いたします。詳細は実施の1ヶ月前を目処にご連絡いたします。
- 申込数
- 111
- 在庫数
- 制限なし
- 発送完了予定月
- 2026年3月

【継続寄付】かにた婦人の村で自立を目指す女性たちへの伴走者募集!
- 総計
- 51人

貧困・虐待などで親を頼れない若者に伴走支援を|若者おうえん基金
- 現在
- 7,300,000円
- 支援者
- 346人
- 残り
- 4日

物価高でごはん食べられない若者に今すぐ食糧を|緊急支援2025冬
- 現在
- 11,885,000円
- 寄付者
- 323人
- 残り
- 27日

【緊急支援|大分市 大規模火災へのご支援を】
#医療・福祉
- 現在
- 4,971,000円
- 寄付者
- 540人
- 残り
- 39日

夜の世界で孤立・困窮している女性たちに、必要な支援を届けたい
- 総計
- 162人

老病ねこたちが最後まで安心して過ごせるおうちを守っていきたい!
#医療・福祉
- 現在
- 2,065,000円
- 支援者
- 165人
- 残り
- 6日

済生会川口乳児院|子どもたちに安心と愛を。46年ぶり施設建て替えへ
- 現在
- 13,335,000円
- 寄付者
- 676人
- 残り
- 20日
















