
寄付総額
目標金額 2,000,000円
- 寄付者
- 121人
- 募集終了日
- 2018年11月30日
今回は、壁面パネルの組立工事のようすをお伝えします!
こんにちは。工事報告担当の安達です。
ようやく皆さまのおかげで半分の坂を上ることができました。
感謝の言葉しかありません。本当にありがとうございます。
あと10日、、、そろそろ9日ですので、工事報告の方もラストスパートに入らせていただきますね。
*******************************
地盤工事が終わったので、次は壁面パネルを組み立てていく工程です。
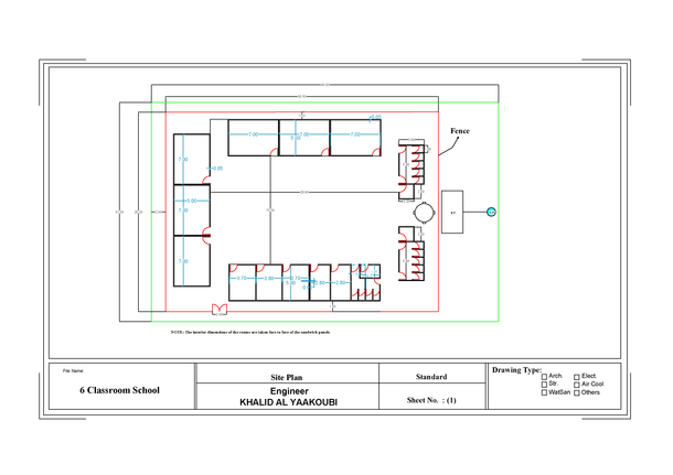
配置図のご紹介を忘れていましたので、今回、先に紹介します。
コンナ、感じ。↓

設計図、左側から、教室3つ、奥に教室3つ、右側に、男女別トイレ各5つずつと手洗場1つずつ、トイレとトイレの間にタンクと倉庫、下の並びは左から職員室3つ、書庫2つ、職員用トイレ男女2つずつと手洗場1つ、そして真ん中の空間が運動場(中庭)、そして、周囲をグルリと校門とフェンス、、、という配置です。
配置図だと、小さいですが、実物はなかなか広いです。下の写真、ご覧ください。
壁になるパネルが、運び込まれてきました。
こうして1教室、完成!
次回は、内装や電気工事等のようすをご報告させていただきます。
悲しい思い出を、新しい思い出に塗り変えていこう!
IVYでは、ISの急襲で村を突然、追い出され、3年ぶりに避難先から戻ってきたら、家も学校も空爆で壊されていた、少数派のT村の子どもたちのために、小学校を建てるプロジェクトを行っています。
工事費には、ジャパン・プラットフォームさんからの助成金が使われますが、200万円が不足しており、Readyforさんのクラウドファンディングでその不足分を皆様から集めています。
Readyforさんのルールは、ご存知の方も多いと思いますが、オール・オア・ナッシングと言って、はじめに設定した期日までに目標金額を集めることができなければ、それまでに集まったご寄付は全部返され、この校舎建設には1円も寄付をいただくことができません。
残り10日、またはそろそろ9日。Facebookでのシェア、ご寄付のお声がけなど、応援いただけましたら幸いです。どうぞよろしくお願いいたします。
ギフト
5,000円
心を込めたお礼のメッセージ
*心を込めたお礼のメッセージ
*寄付金領収書
- 申込数
- 57
- 在庫数
- 制限なし
- 発送完了予定月
- 2019年1月
10,000円
ニュースレター・ポストカード
*心を込めたお礼のメッセージ
*寄付金領収書
*学校建設の詳細を伝えるニュースレター
*ポストカード
- 申込数
- 91
- 在庫数
- 制限なし
- 発送完了予定月
- 2019年1月
5,000円
心を込めたお礼のメッセージ
*心を込めたお礼のメッセージ
*寄付金領収書
- 申込数
- 57
- 在庫数
- 制限なし
- 発送完了予定月
- 2019年1月
10,000円
ニュースレター・ポストカード
*心を込めたお礼のメッセージ
*寄付金領収書
*学校建設の詳細を伝えるニュースレター
*ポストカード
- 申込数
- 91
- 在庫数
- 制限なし
- 発送完了予定月
- 2019年1月

サポーター50人大募集!紛争下にいる子どもたちの未来を応援しよう。
- 総計
- 10人

緊急支援|フィリピン地震へのご支援を
- 現在
- 1,628,000円
- 寄付者
- 222人
- 残り
- 10日

貧困・虐待などで親を頼れない若者に伴走支援を|若者おうえん基金
- 現在
- 7,218,000円
- 支援者
- 338人
- 残り
- 6日

【緊急支援|大分市 大規模火災へのご支援を】
#医療・福祉
- 現在
- 3,448,000円
- 寄付者
- 400人
- 残り
- 41日

物価高でごはん食べられない若者に今すぐ食糧を|緊急支援2025冬
- 現在
- 11,815,000円
- 寄付者
- 312人
- 残り
- 29日

残そう、ライチョウ!動物園の次なる挑戦
- 現在
- 2,005,000円
- 支援者
- 77人
- 残り
- 85日

東京国立博物館|価値ある文化財を救い出す。源氏物語図屏風、修理へ
#伝統文化
- 現在
- 61,745,000円
- 寄付者
- 2,860人
- 残り
- 29日












