
支援総額
目標金額 3,000,000円
- 支援者
- 1,400人
- 募集終了日
- 2023年1月10日
意見広告協力の呼びかけを発送
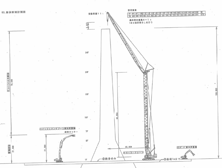
下の図版は平成26年1月31日にドーコンが出した「平成25年度北海道百年記念塔維持管理計画策定調査報告書」の33pにあるものです。道は記念塔を含む野幌原生林の百年記念施設のあり方の検討を平成28年から開始したと繰り返し述べていますが、その3年も前から記念塔の解体を計画していました。
この図が描かれてからちょうど9年が経ちましたが、9年前の計画がまさに現実のものとなったのです。この図にも描かれている大型クレーンが立ち上がると、およそ2カ月半で塔は解体されます。私たちは解体差し止めを求めて行政訴訟を起こしていますが、塔が解体撤去されてしまえば、狭い意味の「訴えの利益」が無くなり、裁判も意味を失います。
こうしたなかで私たちは札幌地方裁判所に解体差し止めの仮申立を起こしました。本訴も3月28日の第3回口頭弁論で重大な判断が示されます。令和5年3月の戦いは、北海道百年記念塔問題にとってまさに「天王山の戦い」といえます。
こうした中で「北海道百年記念塔を支える会」が北海道新聞に意見広告を出すべく募金を集めています。この意見広告は、この天王山の3月において、北海道百年記念塔の解体には多くの反対の声があること、その決定プロセスには多くの疑義があることを、北海道新聞の読者に伝える大きな意味があります。北海道百年記念塔の存続に向け、三権分立の民主主義国家の国民に認められた大規模な実態的活動としては最大規模の働きかけとなります。
私たちは、この広告を成功させるべく、本日、Readyfor北海道百年記念塔プロジェクトの支援者様、訴訟団の皆様のうちから道内在住者にランダムに意見広告協力のご案内を封書で送付させていただきました。14日には届くと思われますので、ご協力のほど、よろしくお願いいたします。また送付作業にご協力頂きましたボランティアのみなさんありがとうございました。



リターン
2,000円+システム利用料
2,000円コース
■支援の感謝を込めたお礼メール
- 申込数
- 591
- 在庫数
- 制限なし
- 発送完了予定月
- 2023年2月
5,000円+システム利用料
5,000円コース
■支援の感謝を込めたお礼メール
■裁判経過の報告メール
- 申込数
- 408
- 在庫数
- 制限なし
- 発送完了予定月
- 2023年2月
2,000円+システム利用料
2,000円コース
■支援の感謝を込めたお礼メール
- 申込数
- 591
- 在庫数
- 制限なし
- 発送完了予定月
- 2023年2月
5,000円+システム利用料
5,000円コース
■支援の感謝を込めたお礼メール
■裁判経過の報告メール
- 申込数
- 408
- 在庫数
- 制限なし
- 発送完了予定月
- 2023年2月

北朝鮮向けラジオ放送「しおかぜ」|マンスリーサポーター大募集
- 総計
- 166人

「防衛技術博物館を創る会」のマンスリーサポーターを募集します!
- 総計
- 530人

【静岡県竜巻】緊急支援を開始!被災地を応援してください
- 現在
- 568,000円
- 寄付者
- 69人
- 残り
- 19日

引退競走馬に明るい未来を リトレースサポーター募集中!
- 総計
- 10人

夜の世界で孤立・困窮している女性たちに、必要な支援を届けたい
- 総計
- 162人

引退競走馬にセカンドキャリアを!!
- 総計
- 101人

【緊急支援|大分市 大規模火災へのご支援を】
#医療・福祉
- 現在
- 4,961,000円
- 寄付者
- 539人
- 残り
- 40日










