
寄付総額
1,510,000円
目標金額 1,000,000円
- 寄付者
- 85人
- 募集終了日
- 2023年3月29日
https://readyfor.jp/projects/114616?sns_share_token=&utm_source=pj_share_url&utm_medium=social
2024年02月06日 18:00
【合田邸通信Vol.2】支持材の設置や土塀の保全に着手しています!
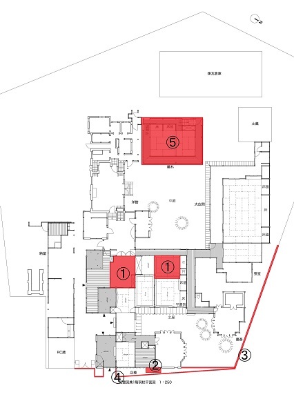
令和5年11月20日から旧合田家住宅の保全工事が開始され、約2箇月が経過しました。
現状では、下図①の主屋棟の食堂、和室及び仏間のいくつかの梁に「支え」となる支持材の設置と、④の劣化した道路側の木柵の撤去が完了しました。

現在は、②の店棟の屋根庇の一部に支持材を設置したうえで、それに荷重のかかる瓦材を除去して保管、また③の土塀の漆喰の剥離や危険な瓦などの保全などを進めています。
また、2月からは⑤のえじぷとの間の素屋根設置・足場架構工事に着手します。これにより、えじぷとの間の倒壊や、それによる大広間などの建屋の巻き込みを抑止することができます。えじぷとの間の状況は次回以降に紹介します。
ギフト
5,000円+システム利用料
5,000円のご寄付
・お礼状
・事業報告書
・寄付金受領証明書
- 申込数
- 30
- 在庫数
- 制限なし
- 発送完了予定月
- 2024年3月
10,000円+システム利用料
10,000円のご寄付
・お礼状
・事業報告書
・寄付金受領証明書
- 申込数
- 35
- 在庫数
- 制限なし
- 発送完了予定月
- 2024年3月
5,000円+システム利用料
5,000円のご寄付
・お礼状
・事業報告書
・寄付金受領証明書
- 申込数
- 30
- 在庫数
- 制限なし
- 発送完了予定月
- 2024年3月
10,000円+システム利用料
10,000円のご寄付
・お礼状
・事業報告書
・寄付金受領証明書
- 申込数
- 35
- 在庫数
- 制限なし
- 発送完了予定月
- 2024年3月
1 ~ 1/ 6
このページを見た人はこんなプロジェクトもチェックしています
ピースウィンズ・ジャパン
村尾建兒(特定失踪者問題調査会)
認定NPO法人シャイン・オン・キッズ
東京国立博物館
ピースウィンズ・ジャパン
一般社団法人計算機と自然(代表:落合陽一)
NPO法人セブンデイズ

【緊急支援|大分市 大規模火災へのご支援を】
#医療・福祉
309%
- 現在
- 3,091,000円
- 寄付者
- 375人
- 残り
- 41日

北朝鮮向けラジオ放送「しおかぜ」|マンスリーサポーター大募集
継続寄付
- 総計
- 166人

入院する子どもたちを笑顔に!ファシリティドッグ育成基金2025
#子ども・教育
22%
- 現在
- 6,852,000円
- 支援者
- 548人
- 残り
- 25日

東京国立博物館|価値ある文化財を救い出す。源氏物語図屏風、修理へ
#伝統文化
205%
- 現在
- 61,720,000円
- 寄付者
- 2,857人
- 残り
- 29日

緊急支援|フィリピン地震へのご支援を
162%
- 現在
- 1,628,000円
- 寄付者
- 222人
- 残り
- 10日

ぬるぬるのお引越|万博・落合陽一 null²パビリオン次なる場所へ
#ものづくり
217%
- 現在
- 217,305,000円
- 支援者
- 12,338人
- 残り
- 29日

救う命を選ばない。どんな犬猫も保護し続け福岡の里親さんを増やしたい
#動物
101%
- 現在
- 3,038,000円
- 支援者
- 289人
- 残り
- 1日
最近見たプロジェクト
NPOクオリティーオブライフ 理事長 原康夫
黒石ライサ
Hatakeyama1115
株式会社SHAREEAT
la vida 松浦慎太郎
永岡 宣幸(地域に貢献する昆虫館めざして)
コモチヅキ

災害時の子供たちに凝固剤トイレセットの支援
- 支援総額
- 117,000円
- 支援者
- 37人
- 終了日
- 12/30
成立
フィリピン台風被災地(ボホール州)への支援のお願い
117%
- 支援総額
- 176,000円
- 支援者
- 75人
- 終了日
- 3/8
成立

指定難病と闘いながらも前に進もうとする夫を支えたい
164%
- 支援総額
- 295,500円
- 支援者
- 32人
- 終了日
- 10/1
成立
#クリスマスにケーキを/1型糖尿病の子どもたちへ年一回のプレゼント
110%
- 支援総額
- 1,100,000円
- 支援者
- 56人
- 終了日
- 12/20
”海の宝石”に140種から選べる美しいペイントを施したキーケース
- 支援総額
- 0円
- 支援者
- 0人
- 終了日
- 9/22
成立
兵庫「たつの昆虫館 」の心でつなぐ昆虫館応援プロジェクト
342%
- 支援総額
- 171,000円
- 支援者
- 27人
- 終了日
- 5/31
古民家リノベでシェアキッチンを作ります!
- 支援総額
- 350,000円
- 支援者
- 29人
- 終了日
- 8/4





