
支援総額
目標金額 1,500,000円
- 支援者
- 110人
- 募集終了日
- 2018年6月1日
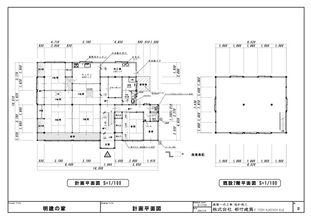
間取り図を大公開!
おはようございます。ナチュラルファームCocoroの多田です。4月に始まったこのプロジェクトも、残すところあと2週間と少しです。うう、早い。正直言いまして、まだ達成できる気が全然しないんです😅 でも最後まで全力で頑張ります。みなさま、あと少しのお付き合い、ご協力をよろしくお願いします!
今回はなぜゲストハウス=宿泊施設を始めようと思ったのか。そんなことを書いてみたいと思います。
みなさんは子どもの頃に友達と遊んでいて、親が迎えに来てイヤイヤながら家路についたことってありませんか?
あるいはお正月。めったに会えないイトコたちと楽しく遊んでいるのに、親が「おい、そろそろ帰るぞ」とか言い出して、ムリヤリ連れて行かれたこととか。
ぼくはそんな時、だいたいムダな抵抗をして親に怒られる子どもだったのですが、誰かと一緒に過ごす楽しい時間が終わって、日常に帰らなくちゃいけないことがすごくさびしかったのを今でも覚えています。
話は今に移って、例えば農業体験やワークショップを開催しますよね。一日一緒に作業をしていると、たいていどんな人とでも打ち解けて仲良くなります。でも夕方になって、時間がきたらお別れをしなくちゃいけない。ま、当たり前といえば当たり前なんですが、ぼくは大人になった今でもこれがさびしくて仕方ないんですよ(笑)
なので農業体験に来てくれた方と一緒にいられる時間を少しでも増やすために、宿泊施設をやりたいな〜と前々から思っていたのです。我ながらあまりに幼稚な動機にビックリですが…😆
でも同じ作業をして、お互いの夢とかを語り合いながら同じ釜の飯を食う、というのは本当にステキな人生のひとときなんですよ〜。そんなステキな時間をもっともっと快適に過ごしてもらいたく、毎日夜な夜な夫婦でゲストハウス改修の計画を練っています。
こんな間取りで〜す
ただ悲しいかな、ぼくたちは農業はそこそこできるのですが、建築とかDIYとかってそんなに得意じゃないんですよね…。何かを作りたいと思っても、そのやり方が分からない。本やネットで調べてみてもよく分からない…。ああ、どうしたらいいのだろう。
と言うわけで! 改装のお手伝いをしてくれる方も大募集です。我こそは、という日曜大工さん、DIY上級者のアナタ。ぜひ作業を手伝って下さい。よろしくお願いしまーす😉
リターン
5,000円

農業体験へのご参加券(2回分)
・お礼の手紙
・農業体験へのご参加券(2回分)
田植え、稲刈り、自然栽培に関するいろんなワークショップ、お味噌作り教室、しめ縄作りなど、ナチュラルファームCocoroが2018年に主催するいろいろな農業イベントへの参加券です。イベントの開催時期や内容などはFacebookページにてご案内をいたします。
- 申込数
- 25
- 在庫数
- 制限なし
- 発送完了予定月
- 2018年7月
5,000円

ゲストハウスのしっくい塗り体験参加権
・お礼の手紙
・ゲストハウスのしっくい塗り体験参加チケット
ゲストハウスの台所の壁にしっくいを塗ります。開催時期は2018年秋以降を予定していますが、工事の状況で2019年にずれ込む可能性もあります。日程等の詳細は追ってご連絡いたします。
- 申込数
- 6
- 在庫数
- 4
- 発送完了予定月
- 2018年7月
5,000円

農業体験へのご参加券(2回分)
・お礼の手紙
・農業体験へのご参加券(2回分)
田植え、稲刈り、自然栽培に関するいろんなワークショップ、お味噌作り教室、しめ縄作りなど、ナチュラルファームCocoroが2018年に主催するいろいろな農業イベントへの参加券です。イベントの開催時期や内容などはFacebookページにてご案内をいたします。
- 申込数
- 25
- 在庫数
- 制限なし
- 発送完了予定月
- 2018年7月
5,000円

ゲストハウスのしっくい塗り体験参加権
・お礼の手紙
・ゲストハウスのしっくい塗り体験参加チケット
ゲストハウスの台所の壁にしっくいを塗ります。開催時期は2018年秋以降を予定していますが、工事の状況で2019年にずれ込む可能性もあります。日程等の詳細は追ってご連絡いたします。
- 申込数
- 6
- 在庫数
- 4
- 発送完了予定月
- 2018年7月

311人募集中!|311子ども甲状腺がん裁判応援サポーター
- 総計
- 275人

10周年記念事業「東北ゼブラ会議 2026」開催!東北創生の次代へ
- 現在
- 940,000円
- 支援者
- 33人
- 残り
- 32日

被災地・七尾市田鶴浜に 再び賑わい・語り合いの場を
- 現在
- 922,000円
- 支援者
- 49人
- 残り
- 11日

市場流通0.1%以下の「国産ごま」を信州から全国へ世界へ発信
- 現在
- 600,000円
- 支援者
- 27人
- 残り
- 11日

KOMAGANEから元気プロジェクト『マンスリーサポーター募集』
- 総計
- 0人

滋賀県東近江市を拠点とした農業、人々へのサービス提供
- 現在
- 0円
- 支援者
- 0人
- 残り
- 45日

#アントラーズの未来をみんなで 2025
- 現在
- 41,075,000円
- 寄付者
- 819人
- 残り
- 27日









