脱炭素社会に資する無垢製材現し4階建木造ビルプロジェクト

支援総額
目標金額 800,000円
- 支援者
- 96人
- 募集終了日
- 2022年12月15日

小さなお寺の大切なたからものを一緒に守り、伝えていただけませんか
#地域文化
- 総計
- 145人

東京国立博物館|価値ある文化財を救い出す。源氏物語図屏風、修理へ
#伝統文化
- 現在
- 59,259,000円
- 寄付者
- 2,836人
- 残り
- 30日

宮崎神社|消えゆく田舎の神社を100年先へ、神様とのご縁をむすぶ
#地域文化
- 総計
- 23人

ろう・難聴中高生の学習塾、継続にご支援を。マンスリーサポーター募集
#子ども・教育
- 総計
- 61人

屋久島でのウミガメ保護と観光の課題~「ウミガメを守りたい」~
#環境保護
- 総計
- 11人

おおむた「大蛇山」まつりにおける継続寄付のお願い
#地域文化
- 総計
- 1人

国立科学博物館マンスリーサポーター|地球の宝を守りつづける
#子ども・教育
- 総計
- 679人
プロジェクト本文
終了報告を読む
プロジェクトにご支援いただきました皆様、賛同いただいている皆様本日、10月21日に、最初の目標金額80万円を達成しました!開始から5日間で達成できたのも、ご支援いただきました皆様のご協力のおかげです。何卒、感謝申し上げます。さて、レディーフォーのクラウドファンディングシステムには「ネクストゴール」というものがあります。これは締め切り日の12月15日までの最終目標としての金額を設定できる仕組みです。そこで、ここから本来の目標額である800万円の金額を掲げさせていただきたいと思います。これは純建築工事費のみの約10%となります。
<ネクストゴール概要>
1.ネクストゴール設定:800万円
2.資金使途:建設費の融資返済とSDGs教育プログラム開発に充てさせていただきます
3.達成できない場合でも事業内容に変更なく、自己資金にて遂行します
▼自己紹介
「睦モクヨンビルプロジェクト」は日本初の無垢製材あらわし木造4階建てビルを建設し、脱炭素社会に貢献できる木造ビルモデルを世界に発信することと、観光産業が主体の壱岐の島における、アフターコロナの地域活性化の中核施設とすることを目的としたプロジェクトです。
注釈:国の機関で建築・土木を管轄する「国土交通省」、木材・林業関連の情報を管轄する「林野庁」に問い合わせ確認をしました。 最終的な回答は、2機関ともに現在把握している範囲では、日本初であるとの回答を頂きました。
本プロジェクトでは、長崎県の離島「壱岐の島」で活動する建築設計事務所:睦設計コンサルタントと全国で大規模木造建築の構造設計を手掛ける木構堂による設計、地元の建築技術を集結させた施工体制で、日本初のビル建設に挑んでいます。
睦設計では環境貢献度の大きい木造建築に長年取り組んでおり、これまでに自邸「ラフタールーフ」で日本建築家協会の環境建築賞入賞、九州最大の5,200㎡の木造特別養護老人ホームで長崎県福祉のまちづくり賞ほか多数の木造建築実績があります。
6月13日に建築基準法による建築確認申請を取得し、現在プロジェクト着工し、手探り状態ではありますが、着実に進んでおります。9月11日に棟上げイベントを開催し、来年1月の完成というゴールを目指して一致団結して取り組んでいます。
「睦モクヨンビル」の最高点地上16mでの上棟神事
紅白マシュマロ、5円玉、お菓子、500円当たり玉などの撒き物イベント開催
▼プロジェクトを立ち上げたきっかけ
全世界で地球温暖化に伴う未曾有の大災害が毎年のように多発しています。地球温暖化を食い止める様々な手法のうち、建築行為が貢献できる分野の一つとして、脱炭素社会に資する木造建築の普及があります。これは、生産過程におけるCO2排出量を削減すること、木材のCO2固着による建築自身の炭素貯蔵機能、森林循環サイクル確立によるCO2削減など、LCC、LCCM、LCAなどの側面からも多岐にわたる効果が実証されています。
私は建築行為は人類にとって必要不可欠なことではありますが、同時に環境に負荷をかける行為でもあると常々考えながら、日々の建築設計活動を行ってきました。JIA(日本建築家協会)に所属して九州支部幹事として活動する中で、様々な建築家の考え方や実作に触れ、自身の建築においても少しでも環境負荷の小さい建築を生み出したいと考えるようになりました。
しかし、コストや工期に制約のある通常の受注業務では、新しいことに挑戦したり、実験的な試みを行う事は困難です。そこで、自邸において木造環境住宅を実現させ、今回自社設計施工による日本初の非耐火木造4階建てビルのプロジェクトを立ち上げました。
昨今、大規模建築物の木造化は急速に進んできました。2019年に建築基準法第21条の大規模木造建築の耐火規定が大幅に見直されたことに加え、国の補助金などの後押しもあり建築大手ゼネコンなどが旗手となり、大規模プロジェクトが進行しています。これらの高層木造ビルは防耐火規制や構造計算上の問題により、鉄骨部材や不燃部材と組み合わせて加工されたハイブリッド材であり、大断面の集成材などのエンジニアリングウッドはその生成過程で膨大なエネルギーを必要とします。つまり木造といっても見えない部分でCO2を排出しており、その相殺部分については言及されていないのが実情です。生成過程が多いという事は、木材部材の単価は非常に高く、建設コストはRC造、S造よりかなり割高となります。現在都市部で建設されている木造ビルは資力のある大企業の広告塔ビルであり、これらがそのまま全国に普及するとは考えにくいと思われます。
ここで特筆すべきは、モクヨンビルは日本初の非耐火木造ビルであり、建物を構成している木材自体が非常にローエネルギーで生成された一般流通製材材料だという事です。
この「真に脱炭素社会に資する木造建築」のプロジェクトを成功させ、全国に発信をしたいと思います。
▼プロジェクトの内容
モクヨンプロジェクト 5本の柱
①生産過程におけるCO2発生が少なく、CO2削減効率の高い日本初の無垢製材ビルの実現
②モクヨンビルの実績をもとに研究開発を進め、木造ビルを全国へ波及させる
③大工技能の継承と、先端技術を実践の現場で習得できる大工塾を開催する
④SDGSに係る環境教育の場とし、見学会やワークショップを継続開催する
⑤壱岐の島の観光・地域活性化につながるエリアブランド化の中核施設とする
①②「真に脱炭素社会に資する木造ビル建築」の建設と実績値のデータベース化、情報発信
「株式会社建設新聞社、長崎県林政課より許諾を得て掲載しています」
「睦モクヨンビル」は日本初となる非耐火木造4階建ビルです。国の機関で建築・土木を管轄する「国土交通省」、木材・林業関連の情報を管轄する「林野庁」に問い合わせ確認をしました。 最終的な回答は、2機関ともに現在把握している範囲では、日本初であるとの回答を頂きました。
この日本初の試みを、大規模木造建築の構造設計を全国で手掛ける「株式会社木構堂」、西日本の大手木材メーカー「中国木材」、建築金物の全国大手メーカー「カネシン」による共同作業で実現させる木造ビル建設プロジェクトです。
◎8月:現場建て方の様子
③「もくよん大工塾」の開講~大工技能の継承と新しい技術の習得
システム工法や新建材の組み合わせで出来上がる建築から、在来木造建築の復権を果たし、技能を継承するため、若手の大工を一般公募する「モクヨン大工塾」を開講しました。現在若手の大工5名が参加し、先輩大工からの技能継承と、新しい工法へのチャレンジの真っ最中です。
◎長崎県で2例目となるCLT工法も取り入れ、最新工法を実践・体感する
伐採期に入っている、国産材の成熟材や間伐材を効率よく、大量に使用できるCLT工法の普及も木造建築拡大の鍵を握っています。既成の使用法のみではなく、新しい使用方法にも取り組み、脱炭素社会への貢献を果たします。
④SDGs・環境教育・現場見学会、子どもエキスポなどの継続開催
「子どもエキスポ壱岐実行委員会より許諾を得て掲載しています」
「睦モクヨンビル」の生きた現場でSDGsに関連する環境教育を行います。ビルの建設敷地は森林に囲まれており、その森の木で間伐を実体験し、木の断面に触れ、木材がどのように活用されるか、なぜ森林の健全なサイクルが必要なのかを学びます。
そして、ビルの内部空間に意匠としてあらわされた柱や梁に直に触れ、森林と木造建築のつながりについて意見を交換し発表するワークショップを開催します。
⑤壱岐の島の観光・地域活性化につながるエリアブランド化の中核施設とする
(1)概要説明
既存施設のいき湯川温泉、壱岐牛弦、壱州本陣、壱岐文化村ほか誘致事業を含む一帯をエリアブランド「梅坂🌸ふろしき」とし、その中核施設として日本初の木4階建て無垢製材あらわしビルを建設します。ビル内に飲食店舗、民泊施設、コワーキングスペースを事業拡大することで、エリア内施設相互の好循環を生み出し、島外需要取り込み及び雇用拡充に繋げます。各施設利用者は、エリア一体化したサービス料金利用が可能なシステムとし、島内外の交流人口増加を狙っています。
(2)背景・動機
エリア一帯に既存施設が散在しており、それぞれが順調に営業していますが、単体営業に終始してきました。コロナ禍の影響もあり停滞状況でしたが、世界的な人流の再開が近くなっています。そこで親族経営であること、自然豊かな広大な敷地を活かして、新店舗を含む各店舗の連携を作り出し、島外観光客やインバウンド需要を取り込むべく、拠点施設となる話題性の高い「日本初の非耐火木造4階建て無垢製材現しビル」を建設することを計画しました。 エリア一帯には、温泉・飲食・文化施設がありましたが、これまで宿泊要素が欠落していました。ビル建設により宿泊とセットになった観光体験メニューを構築することで、魅力が倍増し、「エリア丸ごとホテル」の概念が実現できます。この概念は、北イタリアの観光地復興の手法「アルベルゴ・ディフーゾ(以下A.D)」にならったもので、国内でも成功事例があります。この壱岐島版A.Dを確立することで、体験型観光や滞在メニューを増やし、交流人口増加及び島内雇用の拡大を図ることができると考えます。 壱岐島内の観光メニューに選択肢が一つ増えることで、壱岐島ブランド力の増加にもつながり、島内活性化に直結します。
(2)モクヨンビルを中核施設とした、梅坂🌸ふろしき エリア一帯の航空写真説明図
(3)既存周辺施設写真
Ⓑ森のアスレチックス建設予定地 クワガタ・カブトムシの森 クヌギ群生林 甲虫採取体験
Ⓒ古民家喫茶・郷土料理「壱州本陣」
Ⓓ郷土史館「壱岐文化村」・モクヨン限定カレーメニュー・モクヨン限定メニュー開発
Ⓔ壱岐牛和牛「弦」・モクヨン限定メニュー開発
Ⓕ天然かけ流し温泉「いき湯川温泉」・エリア共通割引サービス・モクヨン利用者無料
Ⓖ季節の果物収穫体験既存ビニル温室施設
春:いちご
夏:いちじく・ブルーベリー
秋:ブルーベリー
冬:いちご・各季節の新鮮野菜各種
◎「睦モクヨンビル」とSDGSに関する小論文~国のグリーン成長戦略との関連性~
小論文 脱炭素社会に資する「睦モクヨンビルぷろじぇくと」
有限会社睦設計コンサルタント 一級建築士 松本隆之
1.序論
本事業は、日本初の無垢製材のみを使用した木造4階建て中層ビルを新築する事業です。2010年に「公共建築物等における木材の利用の促進に関する法律」が制定され、国策としてあらゆる建築物の木造化を推奨する傾向が加速しました。2019年には、建築基準法第21条が改正され、「耐火構造としなければならない木造建築物」の基準が大幅に緩和されました。
2022年現在、国内最高の木造ビルは11階建て高さ44mにまで達しました。しかしながら、都市部における防火規定や構造上の面から、大断面集成材や不燃化処理木材、ハイブリッド木材などを使用する必要があり、建設コストは従来の鉄骨造やRC造と比較して割高となってしまいます。更にこのような工業製品木材=エンジニアリングウッド(以下EW)はその生産過程において膨大なエネルギーを使用し、CO2削減の効果は低減されます。一方、一般流通材と呼ばれる住宅基準の断面寸法の無垢製材は、生産の過程におけるCO2排出量が少なく、真の意味で、建築による炭素貯蔵に繋がると私は考えます。
一般流通材の製材で木造ビルを建てるにはJAS構造材を使用し、建築意匠構造設計を綿密に計画する必要があります。また、法規制の厳しい都市部では防耐火上の理由から採用が難しい為、実現させることは難しい状況です。このような理由から、非耐火木造の無垢製材現しビルは全国的にも前例がなく、その性能や建築特性は未知数です。
今回、この壱岐において、優位性の高い立地条件を最大限に活かして、日本初となる非耐火木造4階建て製材現しビルを実現させることで、様々な先導的な検証を行うことが可能となります。この実験的な要素も含むプロジェクトは、国内木造建築に於ける新規分野の先駆けとなり、様々な研究機関にも情報提供する予定です。
この「睦モクヨンビル」が脱炭素社会に資する木造建築である理由を以下2~6の観点から説明します。
2.日本の歴史風土と木造建築
近年、世界の建築は木造に舵を切っています。元来日本は、世界的にも卓越した木造建築の技術を持ち、法隆寺などの伝統的木造建築は、1300年経った今でも、地震や台風で倒壊せずに現存しています。なんと、世界最古の木造建築トップ10はすべて日本にあります。しかし、火災に弱いという欠点から、近代建築はコンクリートと鉄へと移行します。戦争により日本の都市部が受けた損害は火災によるものが一番でした。そのため、戦後復興、高度経済成長期には鉄筋コンクリート造や鉄骨造、小規模な木造建築では安定供給できローコストで、国の輸入政策の対象となった2×4部材や外材が建築市場を占めることになります。
それと同時に木造建築の材料となる国産木材の森林業や製材業も衰退し、次第に後継者が不足し、日本の山は荒れていきます。
2020年、コロナ禍の世界においてウッドショックによる価格高騰、供給機能の停止という木材市場の機能不全が発生します。この事件がきっかけで、国内森林ストックの活用を見直す動きは加速しています。
木は使用環境で育った材料を使って建築することで最大限の性能を発揮することが知られています。化学製品を使用したEWによって建てられたビルが100年後にどうなっているか分かりませんが、無垢製材の耐久性は歴史的に実証されています。4階建て木造ビルを無垢製材で実現させることで、消費地に近い山で生産された間伐材も含めた森のサイクル、山師の復権や各種林業経済の好循環を生み出す具体的な方法を体現します。
3.全世界共通の目標SDGsと地球温暖化対策に有効な木造建築
建築生産・維持分野のエネルギー消費割合は全体の34%を占めると言われています。世界的な温暖化による異常気象や環境問題対策が急務となり、COP21において我が国は2030年にはCO2排出量を26%削減することを宣言しました。(出典:全国地球温暖化防止活動推進センターホームページより)
建築や都市を木でつくることの最大のメリットは、環境面にあります。木を使って建築を作ることで二酸化炭素を貯蔵することができます。また、木材には断熱性や調湿性があり、断熱材や冷暖房負荷を軽減することができます。このような環境メリットの沢山ある木材を、積極的に建築物に使用するためには、経済面でも他の材料・工法に劣らないことが大切となります。現時点では3階建て住宅程度の規模では木造を選択した方がローコストに建築できますが、大規模建築になるほど、その優位性は小さくなります。その理由は、大きい材料(製材・EW)や耐火部材、特殊な接合金物など流通の少ない高価な部材が必要となり、全体工事費の価格が上がる為です。
しかしながら、一般流通材を使用したトラス構造や複合構造による設計・施工の技術レベルを上げることで、そのような問題は解決可能だと考えます。構造計算や法的解決が容易な工業製品木材に依存してばかりでは、環境にやさしい一般製材を利用した建築の技術革新は成し得ません。「睦モクヨンビル」は日本で初めて、一般製材のみで木造4階建てビルを建築する革新的な試みです。
SDGsの観点からも、輸送エネルギーやコストのかからない、「地産地消」の考え方で、積極的に木を育て、使い、森林の好循環を作り出すことが大切です。そこで、私はそのような動向の先例とする為、隣島の対馬にたくさんあるヒノキやスギを壱岐に直接運んで、地元の大工手刻みでの建築を実現させたいと考えていました。大規模建築や構造建築を木造でつくるには、まだまだ多くのハードルがあり、今回は構造計算上の問題からプレカット加工材による接合金物構法を選択せざるを得ませんでした。しかし、集成材やBP材のような、EW(エンジニアリングウッド:工業製品木材)ではなく無垢製材のみで4階建て木造を建築することに大きな意義があります。私はEWは寸法安定性や構造強度上優れていることは認識していますが、材料自体を生成する際にエネルギーを消費する事、接着剤などの副資材が必要な事などから、やはり山から切り出した無垢の木材をそのまま建築に使用する方法が、最も環境にやさしいと考えています。
■SDGs持続可能な17の開発目標⑦⑧⑨⑪⑫⑬⑮に貢献できる「睦モクヨンビル」
07.エネルギーをみんなにそしてクリーンに
エネルギー消費の小さい建築は、限りあるエネルギーを節約することで社会に貢献します。「睦モクヨンビル」は建築の生産過程において、エネルギー消費の少ない材料で建築され、省エネ計画によるランニングコストの低減、解体時にはバイオマスエネルギー利用や自然還元可能で、ライフサイクルコスト(以下LCC)が小さい建築です。
08.働きがいも経済成長も
09.産業と技術革新の基盤をつくろう
「睦モクヨンビル」では、生成エネルギーの小さい一般流通製材を使用する事、物流による輸送エネルギーの小さい地産地消を目標として掲げ、最寄りの伊万里製材プレカット工場から材料調達して建築します。間伐材も含めた製材を多く使う事で、木を育て、使い、森の循環が生まれます。その為には山師や林業の復権が必要で、生業として成立しなければ存続できません。全国各エリアに、高度な技術工場を中心とした山+林業+製材業+建築業の完結した連携産業帯が生まれれば、雇用も創出され、経済成長にも繋がります。
また、製材の性能を最大限に引き出す為には、大工技能を継承することが必須です。全国各地の有能な棟梁は高齢化しています。生きた現場での大工技能の若い世代への継承が急務といえます。伝統構法と最新の技術革新が融合した設計施工手法が確立されること、その為には、法整備と一体化された設計手法(構造計算)の構築が必要です。これらを実践する建築現場として、全国的に中大規模木造建築を専門に手掛ける構造設計事務所と協同で設計手法の確立を目指し、「睦モクヨン大工塾」と題した大工技能継承の試みも行います。
11.住み続けられるまちづくりを
世界的な地球温暖化に伴い、毎年のように未曾有の災害が各地で発生するようになりました。建築生産行為はまちづくりと直結し、環境負荷の大きい行為でもあります。未来の子供達が住み続けられる地球を後世に引き継ぐために、これからの建築は可能な限り環境負荷の小さい木造建築とすることが大切です。「睦モクヨンビル」は更に環境負荷の小さい一般製材を躯体として利用し、仕上げ材などを極力少なくし、省エネ構成要素にコスト比重の重きをおいた前例のない木造ビルです。
12.つくる責任つかう責任
地球上のすべての生産行為、使用行為には責任が伴います。「睦モクヨンビル」の建設現場及び完成後の木材現しの構造意匠は、子供たちの「責任感」を教育する生きた現場となります。住宅や都市のあらゆる建築行為や生活行為は環境負荷となります。この環境負荷を少しでも低減することが私達の責務です。建設現場において、木造ビルを見ながら森や自然と建築資材、木造建築とまちづくりについて、子供達とワークショップを開催します。
8月4日「子どもエキスポin壱岐」の開催を足掛かりに、毎年子供達と建築と環境問題について一緒に考えます。※別紙開催チラシ参照
13.気候変動に具体的な対策を
気候変動の一要因として、温室効果ガスの増大があげられます。建築産業分野においては、その削減に寄与する様々な方法が考えられますが、これまで主流であった鉄筋コンクリート造や鉄骨造から木造建築へとシフトチェンジすることは最大の効果が得られる手法です。「睦モクヨンビル」では、日本初の非耐火木造4階建て製材現しビルという具体的な形で対策の一例を全国へ情報発信します。
14.海の豊かさを守ろう
海の豊かさは森の豊かさと濃密な関係にあります。緑豊かな森から地下へ浸透した雨水は、海を豊かに育む成分を運びます。それと反対に、造成伐採された山や荒れた山が崩れ、コンクリート側溝などから流れ込んだ富栄養分の泥水は、磯焼けや赤潮を発生させます。壱岐の近海においても、地球温暖化による海水温度の上昇も加わり、磯焼けや生態系の変化が見られます。
木造建築の割合が増せば、木材需要が拡大し、伐採期に入った材木ストックを相当数保有する国産材を活用することができます。森林の計画伐採による、植林のサイクルが安定することで、土砂災害なども防止でき、豊かな海を守ることに繋がります。
15.陸の豊かさも守ろう
日本の陸地において森林面積は67%を占めています。森林の樹木はCO2を吸収し、生物の生存に不可欠な酸素を大気中に放出します。しかも、樹齢の若い木ほど酸素を多く作り出すことが知られています。前述した、森の人工植林と計画伐採による循環サイクルを確立することで、温室効果ガスの76%を占めるCO2を吸収する「陸の緑」を守ることができます。地域製材を利用した木造建築の普及は陸の豊かさを守ることに直結します。
4.日本政府地球温暖化対策計画2021における本事業の位置づけ
令和3年10月、日本政府は地球温暖化対策の推進に関する方針を策定し閣議決定しました。この120ページに及ぶ計画書には、本事業とかかわりの深い施策基準が数多く示されています。その中でも特筆すべき項目について、本事業との関連性について説明します。
「睦モクヨンビル」の木造ビル建築設計施工手法は、・・・・以下①②③④⑤
①パリ協定で掲げた目標数値の達成に貢献します。(p.15~22、計画書全般)
・温室効果ガスの排出削減対策に対して、CO2排出の少ない木造ビルの中においても、特に生産エネルギーの小さい製材による建築手法を確立します。
・脱炭素物流の推進に対して、木材物流のローカルエリア化という手法を具現化します。
・建築の木造化によるCO2貯蔵において、一般流通材の製材による柱と梁を密に配置す
ることで、床面積当りの貯蔵量が特に大きくなります。
②国民各界各層への地球温暖化防止行動のはたらきかけに繋がります。(p.24)
・建設現場において、8月4日「子どもエキスポin壱岐」で森と木造建築について講義します。
・木造建築とまちづくりについて、子供達とワークショップを毎年開催します。
③「事業者の基本的役割」と「国民の基本的役割」を遂行します。(p.26~27)
・建築設計という業種が地球環境に及ぼす影響と社会的役割は大きく、木造建築の優位
性を立証するために、自社ビルにおいて中層建築の木造化を実践します。
・木造ビル建設行為は、一国民として地球温暖化防止活動に参加することに直結します。
④森林吸収源対策に対して、具体的手法を示します。 (p.64~67)
・木材利用によって、森林保全サイクルが確立され、山を健全に保ちます。
・木材利用によって、効率的かつ安定的な林業経営が可能となります。
・木材の多角的な使用法、及び木質バイオマス利用が促進されます。
⑤地方創成に資する脱炭素先行地域づくりロードマップのモデルケースとなります。
(p.101~107)
・脱炭素先行地域づくりの理念に基づき、建築の木造化を積極的に推し進め、島全体へ
と波及させます。
・地方創成に資する地域脱炭素実現の姿を示し、全国へと波及させます。
5.長崎県総合計画2025及び第3次壱岐市総合計画における本事業の位置づけ
長崎県ではチェンジ&チャレンジ2025と題し、将来ビジョンと政策・戦略を示しています。その47の施策とSDGsの17ゴールの関連性が表(p.4~5)として整理されています。
「睦モクヨンビル」の木造ビル建築設計施工手法は、・・・・以下①②③④⑤⑥⑦
①基本戦略1.2.2 関係人口との交流促進による地域活力の向上に繋がります。
②基本戦略2.1.1 成長分野の新産業創出・育成に繋がります。
③基本戦略2.3.1 農林業の収益性の向上に繋がります。
④基本戦略3.2.3 持続可能で魅力ある都市・地域づくりに繋がります。
⑤基本戦略3.3.4 豊かな海づくり、くらしやすい環境づくりの推進に繋がります。
⑥基本戦略3.3.5 脱炭素社会の実現と快適なライフスタイルの普及に繋がります。
⑦基本戦略3.3.6 人と自然が共生する持続可能な地域づくりに繋がります。
また、壱岐市は「SDGs未来都市」に指定され、その中でも先導的な取り組みを行う「自治体SDGsモデル事業」に選定されています。計画書では、政策とターゲットの関連性を示す表(p.29)や3つの戦略プロジェクトを掲げており、本事業と関連性の高い項目が数多く挙げられています。長崎県の計画書と重複する部分も多い中、壱岐市独自の取り組みとして、「+観光プロジェクト」があります(p.29)。これは、観光を産業や暮らし、環境等の幅広い分野と融合させ、経済活性や新しい人の流れを引き起こすプレジェクトです。
「睦モクヨンビル」はこの概念を体現化する新しい観光複合施設となります。その詳細については、次項において後述します。
6.「睦モクヨンビル」建設目的及びその特徴と将来展望
「睦モクヨンビル」の建設には大きく二つの目的があります。一つ目は、木造建築の中でも普及の期待のかかる中高層分野において、ローコストで性能の確保された木造ビルのモデルケースを確立し、全国へ発信することです。二つ目は、壱岐市観光の起爆剤となるべく、壱岐島内初となるエリアブランドを立ち上げ、その情報発信源となる中核施設と位置付けることです。
①目的1について
前述の説明において、世界・国・県・市すべてにおいて共通の目標SDGsを施策の基本理念においていることが分かります。本事業は様々な面においてこの目標に寄与していますが、建築中高層分野における木造建築の新しいモデルケースを示しています。この建築設計施工手法は、法規制の厳しい都市部では防耐火仕様が必要となりますが、日本全国のあらゆる場所で実施可能なプロトタイプと成り得ます。
大きな特徴は、集成材などのEWを一切使用せず、一般流通無垢製材のみで建築される日本初の木造4階建てビルという事です。このことは、SDGsの17の目標達成に大きく貢献します。
炭素貯蔵と炭素吸収源対策として、鉄筋コンクリート造や鉄骨造より優位性の高い木造建築の中でも、工業製品であるエンジニアリングウッドを一切使用しない建築は、最も環境対策貢献度の高い建築方法といえます。また、今後の木造建築において使用比重が高まると予測されるCLT工法も併用しており、未来の木造建築の見本展示場が壱岐に生まれます。
②目的2について
本計画敷地の一体エリアに散在する既存施設である、壱岐湯川温泉・壱岐牛和牛弦・壱州本陣・壱岐文化村の中核施設としての機能を果たします。エリア一帯を「梅坂🌸ふろしき」としてエリアブランド化し広大な隣接敷地を活用して、今後幅広い分野の事業誘致と観光プログラムメニューの提供を計画しています。
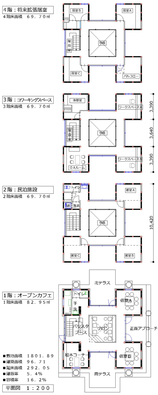
この4階建てのビルは、オープンテラスカフェ、民泊施設、ワーケーションなどに対応可能なコワーキングスペースで構成される複合ビルです。4層吹抜けの木造一体空間に各機能が付属した形で構成され、施設運用の状況に応じた入替や追加増減などに柔軟に対応可能なシステムとなっています。
このビル内の空間はエリアにオープンに開かれ、既存の飲食施設や温泉施設等とリンクした営業形態をとり、相乗効果を高めることに繋がります。やがては、エリア周辺の郷ノ浦街部の既存観光施設や飲食施設とも連携を図り、まちづくり協議会と連携した観光プログラム、世代交流型の観光体験プログラム、文化スポーツエリアとしての事業誘致などを10年単位で全島へ波及させる将来展望を持っています。これに伴い、随時雇用も確保し、SNSを活用して交流人口の増大に繋げていきます。
7.結論
以上、「睦モクヨンビル」が脱炭素社会に貢献できる理由を六つの観点から説明してきました。日本初の試みがこの九州の離島・壱岐において実現されることは、長崎県及び壱岐市において画期的なことであり、その注目度、情報発信力、社会貢献度は多大なものです。
この未来へと繋がる、「木造4階建て無垢製材あらわしビル」の建設は、ここを訪れる様々な人々の豊かな生活に結びつくばかりでなく、建築の実証実験現場として様々な成果や今後の課題を私たちに提示してくれるはずです。
▼プロジェクトの展望・ビジョン
全国の中高層ビルの70%が4・5階建て以下であり、壱岐のみならず全国のかなりの大部分においてこれらを、準耐火の木造ビルに置き換えることが実現可能です。
準耐火建築物は、特別養護老人ホーム「壱岐のこころ」や「郷ノ浦港壱岐観光サービス拠点施設」、「壱岐葬斎場ひなたの丘」で実践した木材の燃え代設計が可能となり、木材のメリットを様々な面で活かした設計が可能となります。この設計においては大断面部材が必要になりますが、部材の生成エネルギーが他のEWより小さく、森林を健全に維持するために必要な間伐材を高効率で利用した芯持BP材を採用することで、真に脱炭素社会に資する木造ビルの建設が可能になると私は考えています。BP材は強度安定性や寸法安定性も高く、建設地に近い地産地消で自由自在に生成できる、環境にも優しいEWだと考えており、今後このBP材をさらに組み合わせ使用したり、制作金物を開発することで、より大スパンや高階高に対応できる建築システムを共同開発したいと考えています。
このモクヨンビルはそれらの試みの先駆けとなるプロジェクトであり、ここでの実績から派生させた全国普及型木造ビルのプロトタイプを提案したいと考えています。
九州経済連合会と日本建築家協会九州支部のワーキングループ「モクカツ」で研究開発し成果を発表する木ビル研究会、来年同会において発足する、木造建築のLCCMを数値データベース化し、建築LCAにおける木造ビルの優位性を検証するWGに所属し共同で報告書を作成したいと考えています。
・LCCM ライフ・サイクル・カーボン・マイナス(建築物に係るCO2排出量がマイナスとなるよ
うに環境配慮された建築物)
・LCA ライフ・サイクル・アセスメント(建築物に係るCO2排出量を事前に数値化して予測
調査すること)
・LCC ライフ・サイクル・コスト(建築物に係る生涯コストのこと)
※(木ビル研究会:九州経済連合会の農林水産委員会活動で、「九経連木造ビル構造標準モデル」による木造・木質化ビルの普及を通じた九州産木材の国内利用促進を目的とする。木造ビル構造モデル確立の早期実現に向け、これまで建築物の木造・木質化に取り組んできた活動のさらなる加速と一体感醸成を目指す。川上~川下まで一体となった活動を目指し、サプライチェーン構築について併せて課題を共有し進めることが合理的であることから、これを含めた形で進め、木造ビルの実現・普及を目指す。)
モクヨンビルの構造設計は、全国的に木造建築を専門で手掛ける株式会社木構堂で実施し、難解な建築確認申請を取得して建設着手しています。西日本最大手の「中国木材」で資材調達し、全国最大手の木造金物メーカー「カネシン」と共同設計を行うことで実現させ、中国木材とカネシンからは既に現地視察にも来ています。11月には九州各県一環の県林政課が一堂に会する「九州木材業振興対策協議九州大会・長崎県建築物木造化講習」が睦モクヨンビルの視察を目的として、この壱岐で開催されることが決定しています。テーマは「脱炭素社会に資する睦モクヨンビル」で、九州一円から80名の参加予定で開催されます。
壱岐市はSDGs未来都市の指定を受けています。SDGs未来課と壱岐みらいづくりサイトや実行委員会が中心となり、8月に開催予定だった「子どもエキスポ壱岐」はコロナ拡大のために延期されており開催日未定ですが、モクヨンビルの現場において「森と木造建築とSDGs」と題したワークショップを開催します。ここでは木造建築が脱炭素社会に貢献できる仕組みや森林についての環境教育プログラムを実施します。この試みは単年ではなく、継続していく予定です。
以上、この「睦モクヨンビルぷろじぇくと」が実現することで、前述のような展望を想定していますが、その後の展開によりあらゆる可能性を秘めたプロジェクトだと思っておりますので、日本全国からのご賛同、ご支援、ご協力を何卒よろしくお願い申し上げます。
天長地久:天は長く、地は久し
未来の子供たちのために、いつまでもこの地球が自然環境と人類の共存できる美しい星でいられますように。
棟札に思いを込めました(^^♪
- プロジェクト実行責任者:
- 松本隆之
- プロジェクト実施完了日:
- 2023年3月31日
プロジェクト概要と集めた資金の使途
モクヨンビルの建設を竣工させ、4月のオープンに向けた準備を完了させます。頂いた資金はビル建設費用と、報告書作成、情報発信費用に使用します。
リスク&チャレンジ
- プロジェクトを実施する上で必要になる資格や許認可について
- 民泊業法の許可
- プロジェクトに必要な金額と目標金額の差額について
- 必要金額と目標金額の差額は自己資金にて補填します。
あなたのシェアでプロジェクトをさらに応援しよう!
プロフィール
全世界で地球温暖化に伴う未曾有の大災害が毎年のように多発しています。地球温暖化を食い止める様々な手法のうち、建築行為が貢献できる分野の一つとして、脱炭素社会に資する木造建築の普及があります。日本初の無垢製材4階建「睦モクヨンビル」は温暖化対策として有効なビル木造化による炭素貯蔵と木材利用の促進による森林の好循環サイクルの確立手法を体現します。 ①「真に脱炭素社会に資する木造ビル建築」の建設と実績値のデータベース化、情報発信し未来へとつなぎます。 ②「もくよん大工塾」の開講~大工技能の継承と新しい技術の習得現場とします。 ◎長崎県で2例目となるCLT工法も取り入れ、最新工法を実践・体感します。 ③SDGs・環境教育・現場見学会、子どもエキスポなどを継続開催します。 ◎「睦モクヨンビル」においてとSDGSと森林と木造建築に関するワークショップを開催します。
あなたのシェアでプロジェクトをさらに応援しよう!
リターン
1,000円+システム利用料
感謝ご挨拶のメールとpdfモクヨン写真集を電子送信さていただきます。
●感謝のメールを送らせていただきます。
●建物の地鎮祭、棟上げイベント、ドローン撮影建設経過や完成写真をまとめたpdf写真集を電子メールにて送信させて頂きます。
- 申込数
- 7
- 在庫数
- 制限なし
- 発送完了予定月
- 2023年4月
3,000円+システム利用料
謝辞のメールとpdfモクヨン写真集を電子送信さていただきます。
●感謝のメールを送らせていただきます。
●建物の地鎮祭、棟上げイベント、ドローン撮影建設経過や完成写真をまとめたpdf写真集を電子メールにて送信させて頂きます。
- 申込数
- 3
- 在庫数
- 制限なし
- 発送完了予定月
- 2023年4月
1,000円+システム利用料
感謝ご挨拶のメールとpdfモクヨン写真集を電子送信さていただきます。
●感謝のメールを送らせていただきます。
●建物の地鎮祭、棟上げイベント、ドローン撮影建設経過や完成写真をまとめたpdf写真集を電子メールにて送信させて頂きます。
- 申込数
- 7
- 在庫数
- 制限なし
- 発送完了予定月
- 2023年4月
3,000円+システム利用料
謝辞のメールとpdfモクヨン写真集を電子送信さていただきます。
●感謝のメールを送らせていただきます。
●建物の地鎮祭、棟上げイベント、ドローン撮影建設経過や完成写真をまとめたpdf写真集を電子メールにて送信させて頂きます。
- 申込数
- 3
- 在庫数
- 制限なし
- 発送完了予定月
- 2023年4月
プロフィール
全世界で地球温暖化に伴う未曾有の大災害が毎年のように多発しています。地球温暖化を食い止める様々な手法のうち、建築行為が貢献できる分野の一つとして、脱炭素社会に資する木造建築の普及があります。日本初の無垢製材4階建「睦モクヨンビル」は温暖化対策として有効なビル木造化による炭素貯蔵と木材利用の促進による森林の好循環サイクルの確立手法を体現します。 ①「真に脱炭素社会に資する木造ビル建築」の建設と実績値のデータベース化、情報発信し未来へとつなぎます。 ②「もくよん大工塾」の開講~大工技能の継承と新しい技術の習得現場とします。 ◎長崎県で2例目となるCLT工法も取り入れ、最新工法を実践・体感します。 ③SDGs・環境教育・現場見学会、子どもエキスポなどを継続開催します。 ◎「睦モクヨンビル」においてとSDGSと森林と木造建築に関するワークショップを開催します。










