厳しい環境を生きた犬猫たちが暮らすお家。シェルター建設にご支援を!
支援総額
目標金額 8,500,000円
- 支援者
- 147人
- 募集終了日
- 2023年9月15日

救う命を選ばない。どんな犬猫も保護し続け福岡の里親さんを増やしたい
#動物
- 現在
- 3,028,000円
- 支援者
- 288人
- 残り
- 1日

老病ねこたちが最後まで安心して過ごせるおうちを守っていきたい!
#医療・福祉
- 現在
- 1,949,000円
- 支援者
- 149人
- 残り
- 8日

くすのき応援隊募集|無垢な瞳に目眩い未来を!
#動物
- 総計
- 80人

行き場のない猫たちに幸せな明日を届けたい。保護猫たちの医療費支援を
#動物
- 現在
- 1,758,000円
- 支援者
- 135人
- 残り
- 29日

絶滅の危機に瀕しているシマアオジ 彼らのいる景色を取り戻したい
#国際協力
- 現在
- 4,203,000円
- 寄付者
- 349人
- 残り
- 12時間

JWCサポーター大募集中!傷付いた野生動物を救いたい
#子ども・教育
- 総計
- 253人

置き去りにされた猫に手術を行いたい
#地域文化
- 現在
- 346,000円
- 支援者
- 58人
- 残り
- 3日
プロジェクト本文
不幸な命を増やさないために
多くの方と繋がれる場所を目指して
一般社団法人Everypawdyは、役員と社員合わせて5人、ボランティアさんをすべて含めても15人に満たない小さな団体です。栃木県の那須町・那須塩原市を中心に、犬猫たちの保護育成、里親探し、不妊・去勢手術の推進、地域猫活動、啓蒙活動など、何より動物たちの命ファーストで、不幸な命を増やさないための活動を行っている団体です。

年間50頭~70頭程度の野良猫たちを保護し不妊去勢手術を行いながら、毎年30頭~50頭程度を里親さんへの譲渡ヘと繋いでいます。優しい里親さんとの出会いに恵まれなかった子たちは、幸せな最期を迎えられるように最善を尽くしながら、施設で終生飼育をしています。
そんな里親さんとの出会いを待っている100匹を超える保護動物たちは、現在2軒の個人宅にて穏やかに暮らしています。しかし、個人宅であるが故に、家主不在時にどなたでも自由に出入りしてもらうことができません。そのため、週に1、2回お手伝いに来てくださるボランティアさんを除き、それぞれの家主が毎日1人で50匹を超える保護動物たちの面倒を見ており、一部にとても負担が偏ってしまっているのが施設における現状の課題です。
さらに、活動にかかる費用のほとんどを、自宅を提供している2人がフルタイムで働いた賃金にて捻出しているため、メインで活動をしている2人が仕事を辞めて活動に専念することもできない状況であり、それが人手不足の原因にもなっています。

保護活動を続けていくにあたって、受け入れる数にはどうしても限界が生まれます。一頭でも多く助けたいと考えれば、一頭でも多く譲渡を進めることが必須となります。そのため、保護動物たちと里親さんとのご縁を結ぶ機会を作るということはとても大切なことです。そして、ご縁を結ぶまでの間、動物たちがストレスなく健やかに過ごせるより良い環境をつくることも、またとても大切なのです。
しかしながら、空調管理された室内で危険や飢え等の過酷な自然環境からは守られてはいても、人手不足やスペース不足が原因で、誰かしらが監視できている時を除き、多くの時間をケージの中で過ごすことを余儀なくされている動物たちも多く存在していて、快適な空間を十分に与えることができず、のびのびと暮らす自由を与えられていません。また、里親希望の方の見学についても、あらかじめご予約いただかない限りは対応できていないのが現状です。
幸せになってもらうために過酷な環境から保護したにも関わらず、動物たちにとって快適と言える環境を十分に与えてあげることができていないこと、そして里親さんとのご縁を結ぶ機会を満足に作ってあげられていないことが、私たちにとってとても心苦しいことであり、とても大きな課題でした。
Everypawdyの保護活動は、一部は応援してくださる方からのご寄付や会員様よりいただく会費もあるものの、そのほとんどは自己資金によってなんとか継続できている状態です。そのため私たちの力だけでは新しいシェルターを作るための費用を十分に捻出することができません。
そこでこの度、再びクラウドファンディングへの挑戦を決意しました。
目標金額は850万円。保護施設を作るための物件購入及びリフォームを実施します。
保護動物たちに、より自由で快適な空間を。里親希望の皆様に、より気軽に保護動物たちと出会える機会を。そして、SNSや地域での活動を通して私たちの活動に興味を持ってくださった方たちをはじめ、関係するすべての皆様に、私たちの活動と保護動物たちの明るい未来に希望を持っていただけるように。その思いと理念を次代に引き継げるような場所を拠点にすることができたら…とずっと願ってきました。
今、これまでの念願を実現するまで、あと一歩のところまできています。
私たちが夢にまで見たシェルターを作るために、どうか皆様のお力をお貸しください。
いつも応援してくださっている皆様に、再三の援助をお願いすることは、大変心苦しくもありますが、皆様と一緒に理想の家を作り上げられればと思っております。
どうか皆様からのあたたかい応援・ご支援をよろしくお願いいたします。
一般社団法人Everypawdy 代表理事 藤岡 和人
メンバー一同
ページをご覧いただきありがとうございます。私たちは、栃木県北部の那須地域にて保護活動をしている一般社団法人Everypawdyの代表理事の藤岡と代表代行の片桐です。
放置すれば命の危険のある犬猫たちの保護育成と里親探しを中心に、不妊去勢手術の推進及び地域猫活動や、犬猫の適正飼育に関する知識の普及や啓蒙活動など、何より動物たちの命ファーストで、不幸な命を増やさないための活動を行っています。

2019年10月の団体立ち上げから現在までに、およそ150匹の猫を譲渡しており、片桐の個人での活動時期も含めると、これまでにおよそ250匹の犬猫たちと里親様との橋渡しをしてきました。そして現在は、藤岡と片桐のそれぞれの個人宅を利用して、3頭の犬と100匹を超える猫を保護しています。
任意団体としての立ち上げからこれまで、保護動物たちの日々のお世話、各地での捕獲・保護依頼への対応、野良犬・猫のご相談対応、里親さんたちへのトライアルや譲渡、SNS更新や経理業務…など、保護活動にかかる活動をボランティアさんの協力も得ながら、そのほとんどを2人で行ってきました。
しかし、この度ご縁があり新たな仲間たちと団体の法人化を実現し、2023年6月より新たに「非営利型一般社団法人Everypawdy」へと生まれ変わりました。
法人となった以上、任意団体として活動していた時よりもさらに強い信念と責任を伴わなくてはなりません。これまで以上により動物たちの命に責任を持ち、1匹でも多くの命を救えるよう、日々活動を続けています。
これまでの活動実績
2019年度 保護頭数:38頭 / 譲渡頭数:35頭
2020年度 保護頭数:47頭 / 譲渡頭数:42頭
2021年度 保護頭数:57頭 / 譲渡頭数:22頭
2022年度 保護頭数:61頭 / 譲渡頭数:31頭
|前回のクラウドファンディング
2019年の前回のクラウドファンディング挑戦時には、当時個人で活動していた片桐が保護していた猫の不妊・去勢手術費や血液検査・ワクチン接種費を捻出するために呼びかけを行いました。この挑戦をきっかけに、任意団体を設立することとなります。
最終的には、83名の方々から865,000円のご支援をいただき、私たちの最重要懸念事案であった、まだ不妊・去勢手術を受けられていない猫たちへの手術の実施と、ワクチン接種や血液検査等の医療ケアをすべて完了することができました。
また、第一目標金額を大きく超えてご支援いただいた支援金で、クラウドファンディング期間中に増えてしまった保護猫の手術や医療ケアの費用、保護飼育費用、動物運搬用の車の車検整備代までもまかなうことができました。
この場を借りて、ご支援いただいた皆様に、改めて感謝申し上げます。温かいご支援、本当にありがとうございました。
団体を立ち上げてすぐのクラウドファンディングだったこともあり、私たち自身もまだまだ勉強、経験がいろいろと不足していたのですが、そんな中で挑戦を通して多くの団体様や個人活動家の方、熱い思いで応援してくださる方など、さまざまな形で保護活動を支えてくださる皆様と出会うことができました。
ここから私たちの活動は拡大し、現在は100匹を超える動物たちを保護するに至っています。
どんな子も快適に暮らせるお家を
クラウドファンディングで実現できること
|個人宅での保護活動の限界
現在は、藤岡と片桐のそれぞれの個人宅を利用して保護活動を行なっていますが、そこにはとても多くの課題があります。
|個人宅をシェルターとして活用することで起こっている問題
活動の主体である家主の2名が、活動費捻出のために外に出てフルタイムで仕事をしているため、日中は施設に常駐できていません。それにより、以下のような課題が出ています。
・近親者や友人など、特に親密な関係者以外が自由に施設に出入りすることができない
・個人宅であるため、プライバシー上の問題もあり、ボランティアを広く募集することができない
・里親希望の方に気軽に施設を見学してもらことができない
|人手不足・スペースの不足により起こっている問題
個人宅であること、また家主2名が保護活動費用捻出のために仕事をしていることにより、さらに以下のような課題も出ています。
・ボランティアの人員不足により、満足できるほど行き届いたお世話ができていない
・人員不足かつ個人宅のキャパシティによる都合上、一度に多くの方にお越しいただけるような譲渡の機会を提供できない
・多くの保護動物が1日のほとんどをケージで過ごすことを余儀なくされる
限られた中でも動物愛護法等に基づいた飼養環境を整え、保護した動物たちがなるべく快適に過ごせるように日々目の前の命に向き合っています。
しかし、どうしてもボランディアさんにお願いできる範囲は限られてしまうため、実質1人で睡眠時間を大幅に削って50匹以上の動物たちのお世話をしており、私たち家主への負担がとても大きくなってしまっている状態です。
当然、体力的にも費用的にも限界がありますので、この状態が続けば保護活動自体が行き詰ってしまう可能性も高くなります。
幸せになって欲しいと、過酷な環境から保護したにも関わらず、動物たちにとって快適と言える環境を十分に与えてあげることができず、また里親さんとのご縁を結ぶ機会も満足に作ってあげられていないことが、私たちにとってとても心苦しいことであり、とても大きな課題でした。

|幸せな住環境とすべての動物に平等な出会いの機会を
那須には、まだ見つかっていないだけで、困っている動物たちが確実にたくさん存在しています。
人間の身勝手な考えで、とてもつらく困難な境遇に追い込まれ、たくさんの命を失い続けている動物たちを、放っておくことなどできるはずもありません。私たちは、これからもたくさんの動物たちを救うべく、そして可哀そうな環境に追い込まれる動物たちを一匹でも多く減らすため、活動を続けていく拠点として、法人名義での新たなシェルターが必要であると考えています。
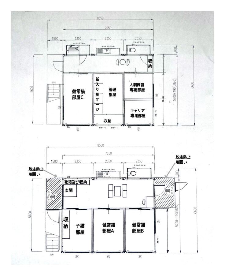
近隣に迷惑がかからない土地を購入し、空調設備を整えたプレハブを建設。広くボランティアさんたちを募集し、人が常駐する動物たちの命ファーストの家。人間の勝手で生み出した可哀そうな動物たちに、より幸せに生きられる環境と機会を与えるための場所を作ります。
皆様からいただくご支援は、その動物たちの家の購入資金として活用させて頂きます。
シェルター建設によって実現できること
|すべての保護動物たちに、自由で快適な空間を
シェルターでは、健康なノンキャリア組、猫AIDS・白血病などのキャリア組、不妊・去勢手術前の子猫組、まだ医療ケアを受けていない伝染病潜伏期間組、人馴れ練習組など、さまざまな特徴や個性に合わせてそれぞれの独立した居住スペースを分けることで、狭いケージの中ではなく、室内を自由に走り回ることができる快適な環境を与えることができます。
・十分な運動ができるように、壁面に多数のステップ、キャットウォーク、タワーを設置
・床は清潔に保ちやすく、粗相などにも対応しやすいように強度のあるクッションフロアを使用
・各キャリア、ノンキャリア、伝染病潜伏期間中の保護されたばかりの子、猫たちが持つ個性でエリア分けすることで、よりきめ細やかなケアの実現
|すべての動物が平等に出会える場へ
ボランティアさんの出入りが自由になることで人手不足の解消が期待でき、より細部にまで行き届いたお世話や定期的な譲渡会の開催もできると考えています。また、里親希望の方にも気軽に足を運んでいただける環境になることで、一匹でも多くの保護動物たちが新しい家族となる人たちと繋がることができる拠点として、みんなに平等に出会える機会を与えてあげられます。
・各部屋、出入り口には脱走防止用の柵の設置
・外部からの感染持ち込み防止のため、各階に手洗い場の設置
・気軽に足を運んでもらえるよう、休憩、譲渡契約、チャリティーグッズ販売用等の多目的ホールを設置
・事務局、物資保管庫の設置
|クラウドファンディングに挑戦する理由
すでに私たちの活動をご理解いただき、応援してくださる寄付者様や会員様よりいただくご寄付もあり、いただいたご寄付は全て通常の保護活動に活用させていただいています。それでも資金は十分ではなく、活動費の8割以上を藤岡や片桐の自己費用でどうにか捻出しています。
通常の保護活動の費用だけでも月20万円以上かかっており、急な治療費などが発生すると、さらに資金が必要になってしまいます。そのため、新しいシェルター購入ができるだけの資金の捻出が難しいのが現状です。
しかし、この状況を抜け出さなければ、せっかく過酷な環境から救い出した保護動物たちに快適な暮らしを与えることができません。そして、未だ人に気づかれない場所で苦しんでいる動物たちを救うこともできなくなってしまいます。
今保護されてる動物たちのため、そしてまだ誰にも見つけてもらえていない動物たちのため、私たちがここで歩みを止めるわけにはいきません。どうにかこの状況を打破するべく、今回再びクラウドファンディングに挑戦することを決意いたしました。

第一目標としている850万円という金額は、あくまでも私たちが考える理想のシェルターの最低ラインから割り出した金額です。第二目標以上の達成ができた場合は、プレハブではなく、中古住宅や元ペンションなどをシェルターとして購入したいと考えています。
上を見ればキリはありませんが、理想としてはより大きく、部屋数も多い物件を購入し、将来的には保護されている動物たちと実際に触れ合ってもらえる「保護動物カフェ」を併設し、そこでの利益を活動費に充当できる「自走型シェルター」にしていくことが目標です。
「動物たちの命ファースト」
|自走ができる活動基盤を整える
団体を立ち上げてからさまざまな変化がありましたが、常に「動物たちの命ファースト」であることは変わりません。
目の前に命の危険があればまずは保護をする。
それにより自分たちが貧しい思いをしたり、後々大変な思いをしたりしたとしても、何よりもまずは「命」。それが道理だと考えています。自分たちにできることには限界がありますが、少しでも救う可能性があれば、その可能性を高める努力を模索しています。
私たちが活動を続けられない状態になってしまっては元も子もありません。シェルターを個人宅と切り離すことで、これまで以上にボランティアさんを広く募集することができ、より多くの方と協力して活動を続けていけることを期待しています。また、私たちが年老いて引退を余儀なくされたとき、次の世代に引き継げる場所となってくれることにも大いに期待しています。
そして、たとえ出会いの機会に恵まれず、終生飼養となった動物たちにとっても、その生涯を穏やかに過ごせるお家になりたいと心から願っています。
まずは、この状況を抜け出し、これまで以上に保護を必要としている多くの動物たちを助けられるよう、活動基盤を整えていきたいと考えています。
また、私たちは、保護活動と譲渡、一部TNR※を中心に活動しています。
※TNR・・・野良猫を捕獲(Trap)し、不妊・去勢手術(Neuter)を行い、元の場所に戻す(Return)活動のこと
しかし、保護犬猫の問題を解決していくためには、目の前の命を救うだけでは不十分です。生まれてすぐ消えてしまう子たちをなくすためには、地域の方の理解が何よりも大事であり、動物保護における啓発・啓蒙活動の必要性も強く感じています。
|保護動物の問題を一緒に考える拠点へ
私たちが活動している栃木県では、未だに動物たちは家族ではなく、犬は「呼び鈴」、猫は「ネズミ捕り」といった考え方をする方もおり、増えた子猫は川に流してしまうなどの残酷な対応をしている話などを耳にすることさえあります。
また、野良猫として外で自活することの過酷さや、その繁殖力の高さなどを理解しないまま、「かわいいから」「かわいそうだから」とご飯だけをあげ、治療や手術も受けないまま、繁殖の片棒を担ぐような形で命を増やしてしまい、最終的に自分たちでは解決できない事態になってから相談を受けることが多いです。しかし、猫を一匹助けるためにどれだけの費用がかかるかもご存知ではなく、費用がかかると聞けば「考えます」と言ったきりになってしまうことも数え切れない程あります。
そして、栃木県は車両事故により命を落とす、いわゆるロードキルがとても多く、年間で6,000頭以上が命を落としています。運転をする人間が、きちんと法律を守り、飛び出してくる動物がいるということを常に認識することも、動物たちを守るという観点からはとても大切なことなのです。
※栃木県動物愛護指導センター様より掲載許諾を得ています
地元に、誰もが気軽に足を運べる保護施設があり、そこで動物たちのかわいい姿に癒されつつ、動物たちを取り巻く今の環境や現状を知って頂く機会を作ることができれば、少なくとも無責任に命が増やされ、段ボールに入れられて川に流されるといった悲惨な目に合う動物たちを、今よりも確実に減らすことができるのではないかと思っています。
「かわいい」「かわいそう」という気持ちは、そもそもは優しさから派生した素敵な想いであり、動物たちにつらい思いをさせたいと考えてる人は、ほとんどいないのではないでしょうか?
私たちが作るシェルターが、地域の方々や同じ課題を抱える人たちが集まれる意見交換の場として、正しい方向へ導けるように啓発・啓蒙していけたなら、那須地域における新たな動物保護の情報発信地として機能してくれると期待しています。
|不幸な動物たちのいない未来を目指して
新たなシェルターの完成により、より多く救う可能性を高める努力、よりよい環境で幸せに過ごしてもらうための努力、たくさんの人に理解していただき正しい方向に導くための努力、なにより小さな命を死なせないためにできるすべての努力を続けていきたいと思っています。
私たちの最終目標は、日本中の保護団体の連携による、自分たちが暮らす地域だけにとどまらない日本全体での殺処分ゼロ及び、野良犬・野良猫と呼ばれる不幸な動物たちのいない未来を目指せる基盤を作ることです。関係各所との連携、他団体様や個人活動家の皆様たちとのネットワークを広げ、少しでもその目標に近づけるよう、常に初心を忘れず、常に道を見失わず、力の限り精一杯の努力を持続し、またその理念と思いを次の若い世代へと引き継いでまいります。
まずはその第一歩として、目の前の命を何より大切にし、人と動物が共生できる素敵な街づくりの一端を担えるよう、メンバー一同力を合わせて邁進してまいります。
消えても良い命などこの世に一つもありません。
どうかご賛同いただける皆様からの温かいご支援をよろしくお願いいたします。
藤岡和人
一般社団法人Everypawdy 代表理事
私が保護活動の世界に飛び込んだきっかけは、代表代行の片桐より2匹の猫を譲渡してもらったことでした。
一人きりで40匹近い猫と大型犬4頭と小型犬2頭を保護飼育し、そこにかかる費用のほぼすべてを一人で負担していた彼女のバイタリティにとても驚き、自分にも何かできることはないかと考え、手伝いを申し出たことがすべての始まりでした。
そこから初めてのクラウドファンディングでの不妊去勢手術費用と医療ケア費用の捻出、睡眠不足になりながらのたくさんの動物たちの毎日のお世話、少しでも多くを救うために、SNSやHP・ネットショップやほしいものリスト等を利用した、広くご理解頂くための活動の認知活動の他、譲渡・病気や寿命によるたくさんの動物たちとの別れ、時に平気で嘘ばかりを並べる詐欺まがいの人物に、多頭飼育崩壊の現場の猫たちを30匹無理やり押し付けられたりしたことや、ご支援のお願いをした際に心無い声をかけられたりと辛い思いも、たくさん経験してまいりました。
何度も挫けそうになりながらも、これまで続けてこれたのは、共に頑張る仲間たちの存在と、自分を親のように慕い懐いてくれる動物たちの存在のおかげだと思っています。
私は、自分一人ではきっと大したことは何もできない自信がありますが、誰かのために頑張る努力だけは継続していける自信があります。動物たちのため、同じ思いで活動する仲間たちのため、そしてそんな私たちの思いに賛同して下さったたくさんの皆様のために、決し折れず、ブレることなく努力を重ね、いつか大きな実になることを信じ頑張りたいと思っています。
きっとその先に、殺処分ゼロ、野良犬・野良猫と呼ばれる不幸な動物たちのいない未来があると信じて。
片桐かおる
一般社団法人Everypawdy
代表代行理事
愛玩動物飼養管理士
私は、昔から鳥や動物が大好きでした。そしてなぜか困っている動物たちとの遭遇率が高かったように思います。そのため、若い時分から多くの動物たちを保護してまいりました。動物好きは周知されていたので、ケガをしたり捨てられたりした動物が持ち込まれることや、動物に関する質問や相談などを受けることがとても多く、愛玩動物飼養管理士の資格を取得しました。
まだ千葉に住んでいた頃は、弱ってる猫を見つけた時などに、保護して医療ケアを施し里親さんを見つけてあげる程度だったのですが、那須に来てからはドッグカフェを経営していたこともあり、主に大型犬を保護し、躾を行い里子に出したり、保護団体に保護されたものの、行き場のない大型犬の預かりボランティアなどをしながら、愛護センターから殺処分になる寸前の小型犬や猫を保護したりしていました。
その後、震災の放射能による風評被害のためにカフェを閉店することになり、那須湯本で会社員になったのですが、職場関係の縁で行き場のない30匹を超える猫を保護することになり、そこから数年間、時々手を貸してくれる友人の存在もあったものの、基本的には1人きりでお世話をし、ドッグカフェの頃から合わせると100匹ほどの犬猫を里親さんの元に送り出してきました。
しかし、保護活動をする私に対し、時に卑下したり、時に全否定したりと、ひどい内容で本当に心ない言葉をかけてくる方もいました。それでもずっと微力ながら保護活動を続けてきました。私はそもそも人間の命だけが大切という考え方には違和感を覚えます。時に軽視されがちな犬や猫の命を大切にしてあげたいと思います。
元来、犬や猫は野生の生き物ではなく、野良犬や野良猫は人間により生み出されたものです。しかし、人間の都合で捨てられて飢え死にしたり、野生動物に捕食されてしまう子犬や子猫。ロードキルで命を落とす犬猫も多いです。また、病気でも病院に連れて行ってもらえない犬猫もいます。
そんな犬猫を見てしまったら、見て見ぬふりは出来ませんでした。小さな命を守ってあげられるのは人間だけだと思うのです。多くの動物たちの中でも、犬や猫は人間と意思疎通できる数少ない素晴らしい生き物です。人間の都合だけで辛い環境に追い込んだり、虐待したり、命を奪ったり、殺処分される犬猫をなくしたい。人間と家族であったり友達であったり、信頼しあえる関係になれる動物たちを一匹でも多く救うため、皆さんのお力をお貸しいただけたらとても嬉しく思います。
どうぞよろしくお願いいたします。
田村 豪 先生
タムラ動物病院 院長
エブリパウディさんは、働きながら懸命にネコ達の保護活動をされています。人間の勝手な事情によって捨てられてしまったネコ達の保護活動及び里親探しを働きながら懸命に行なっております。ネコ達一匹一匹に愛情を注ぎ、お世話をする姿は頭が下がります。この活動にご理解頂ける皆様、命を大切にして頂ける皆様。ご協力をお願い致します。
仲川 翔大 様
プロレスラー
ご縁がありEverypawdy様を応援させて頂いております、プロレスラーの仲川翔大と申します。
現在、シェルターの代わりに個人宅で計100匹以上の猫ちゃん、ワンちゃんを保護されているということを知りました。私自身、2匹の保護猫と一緒に暮らしているのですが、2匹でも手一杯です。現状を想像するだけで頭が上がらないですし、感謝の気持ちでいっぱいです。これからも1匹でも多くの動物たちが救われるよう、自分も陰ながら応援させて頂きたいとと思っています。
イケメン二郎 様
プロレスラー
プロレスラーのイケメン二郎です。これよりEverypawdyの活動が本格的に始まることを心より嬉しく思うと同時に心より応援したく思っております。
というのも、私ごとですが3年前に日本からアメリカに移住し、アメリカで初めて動物の保護施設に行きました。そこで数々の心無い理由によって檻の中に閉じ込められた動物たちを実際に目にして、心が痛くなりました。そこで1匹だけですが猫を我が家に迎え入れました。今ではもう猫なしでは考えられないほど幸せな生活が僕にはあります。
それと同時に、もし僕がこの猫を引き取らず、誰にも引き取られずにいたら行く先はどうなっていたのかと思うと非常に心が締め付けられました。なのでこのEverypawdyという保護団体のこれからの活動を心より応援したく思います!皆様、どうか宜しくお願い申し上げます。
最後までお読み頂きありがとうございました(^^)!!
窪田まゆみ様
当会から猫を譲渡した里親様
私がエブリパウディさんと出会ったのはインスタグラムでの投稿でした。
先住猫の妹分として保護猫を迎え入れたいと探していると、「80匹の保護猫の里親募集中」という文が目に入りました。動画に写った可愛いらしい一匹の仔猫。甘えた声がたまらなくて、本当に一目惚れでした。3ヶ月前の投稿。もう居ないかも知れないけれど、他の子という考えは全くなく、思い切って問い合わせてみると今も待機しているとのこと。
まさに運命の出会いでした。
譲渡の際にわざわざ栃木から群馬まで送り届けて下さり、申し訳なく思っていました。しかし、「この子の新しい家族がどんな方なのか、どんな生活環境で、大切に育ててもらえるか知るために必ず送り届けることにしているんです。」と仰っていました。
たくさん育てている中での一匹の猫。きちんとしたその愛情の深さに心打たれました。「ひとつでも多くの命を救いたい。」と思っていても実行するのは難しいことです。でも、ここエブリパウディさんはまさにそれを実行しています。行く宛のない野良猫たちを保護し、治療をし、里親探しをする。本当に素晴らしい団体です。
たくさんの愛情をかけて育ててもらった麦。気遣いができるとても穏やかな子で、我が家に来てくれて本当に良かったと家族中で感謝しております。2匹になり、より賑やかになった我が家。おかげさまで毎日朝から晩まで猫の話題がつきません。おうちのない猫に新しい家族を。心からそう願っています。
▼プロジェクトのご留意事項
・ご支援の前に、利用規約(https://legal.readyfor.jp/guidelines/others/terms_of_service/)を必ずご一読ください。
・ご支援完了後のお届け先の変更はできません、お間違いのないようご注意ください。
・ご支援完了時に「応援コメント」としていただいたメッセージは、本プロジェクトのPRのために利用させていただく場合がございます。あらかじめご承知おきください。
・ご支援に関するご質問は、こちらをご覧ください。
・本プロジェクトのリターンのうち、【お名前掲載】に関するリターンの条件詳細については、リンク先(https://readyfor.jp/terms_of_service#appendix)の「支援契約」の中にある「●命名権、メッセージの掲載その他これに類するリターン」をご確認ください。
- プロジェクト実行責任者:
- 藤岡和人(一般社団法人Everypawdy)
- プロジェクト実施完了日:
- 2024年9月18日
プロジェクト概要と集めた資金の使途
シェルター物件購入及びリフォーム費用
リスク&チャレンジ
- プロジェクトを実施する上で必要になる資格や許認可について
- 第二種動物取扱業:2024年9月末までに届出予定
あなたのシェアでプロジェクトをさらに応援しよう!
プロフィール
あなたのシェアでプロジェクトをさらに応援しよう!
リターン
3,000円+システム利用料

3,000円|応援コース
・お礼のメール
・活動報告レポート
・HPにお名前掲載(希望制)
・新シェルターにお名前掲載(希望制)
- 申込数
- 68
- 在庫数
- 制限なし
- 発送完了予定月
- 2024年9月
10,000円+システム利用料

10,000円|応援コース
・お礼のメール
・活動報告レポート
・HPにお名前掲載(希望制)
・新シェルターにお名前掲載(希望制)
- 申込数
- 74
- 在庫数
- 制限なし
- 発送完了予定月
- 2024年9月
3,000円+システム利用料

3,000円|応援コース
・お礼のメール
・活動報告レポート
・HPにお名前掲載(希望制)
・新シェルターにお名前掲載(希望制)
- 申込数
- 68
- 在庫数
- 制限なし
- 発送完了予定月
- 2024年9月
10,000円+システム利用料

10,000円|応援コース
・お礼のメール
・活動報告レポート
・HPにお名前掲載(希望制)
・新シェルターにお名前掲載(希望制)
- 申込数
- 74
- 在庫数
- 制限なし
- 発送完了予定月
- 2024年9月





















