
支援総額
575,000円
目標金額 500,000円
- 支援者
- 71人
- 募集終了日
- 2025年2月9日
https://readyfor.jp/projects/wisteria?sns_share_token=&utm_source=pj_share_url&utm_medium=social
2025年01月16日 14:26
浜松市に相談をしてきました。
高丘北の物件
保証会社の審査が通ったので建築行政課と障害福祉課に相談しに行ってきました。
また、書類関係が揃ったので政策金融公庫さんに融資の相談を行ってきました。
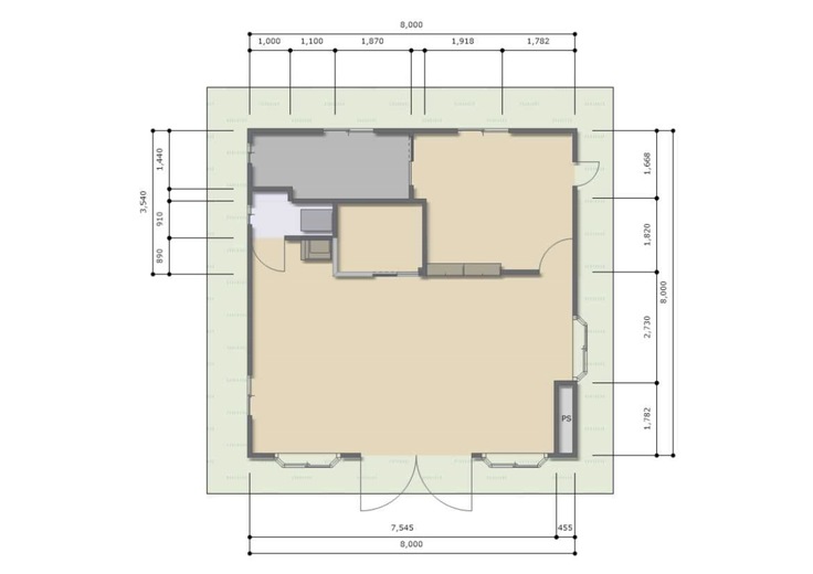
下記は事業所の図面です。どこが何になるかはお楽しみです。
少しずつですが、開業に向けて歩んでおります。
応援よろしくお願いいたします。
リターン
2,000円+システム利用料
感謝のメール
感謝のメールをお送りいたします。
- 申込数
- 25
- 在庫数
- 制限なし
- 発送完了予定月
- 2025年4月
5,000円+システム利用料
感謝のメール及びWebページにお名前掲載
感謝のメールをお送りいたします。
また弊社Webページにてお名前を掲載させていただきます。(希望者のみ)
- 申込数
- 65
- 在庫数
- 制限なし
- 発送完了予定月
- 2025年4月
2,000円+システム利用料
感謝のメール
感謝のメールをお送りいたします。
- 申込数
- 25
- 在庫数
- 制限なし
- 発送完了予定月
- 2025年4月
5,000円+システム利用料
感謝のメール及びWebページにお名前掲載
感謝のメールをお送りいたします。
また弊社Webページにてお名前を掲載させていただきます。(希望者のみ)
- 申込数
- 65
- 在庫数
- 制限なし
- 発送完了予定月
- 2025年4月
1 ~ 1/ 3
このページを見た人はこんなプロジェクトもチェックしています
TAKAHIRO.OZEKI
ピースウィンズ・ジャパン
金井 しのぶ
旭川医科大学病院
とざわ
秋田県大仙市文化財課
NPO法人セブンデイズ

地域の野良猫を守りたい!小さな命にTNRと医療を届けるプロジェクト
33%
- 現在
- 40,000円
- 支援者
- 15人
- 残り
- 2日

【緊急支援|大分市 大規模火災へのご支援を】
#医療・福祉
403%
- 現在
- 4,033,000円
- 寄付者
- 496人
- 残り
- 40日

命を守る手術器械の職人技を次代へ。技術継承にご支援を
124%
- 現在
- 1,864,000円
- 支援者
- 57人
- 残り
- 9日

地域医療を守るため、ともに走ろう|ドクターカー更新プロジェクト
36%
- 現在
- 8,389,000円
- 寄付者
- 273人
- 残り
- 28日

市場流通0.1%以下の「国産ごま」を信州から全国へ世界へ発信
40%
- 現在
- 600,000円
- 支援者
- 27人
- 残り
- 9日

【第二弾】法隆寺金堂、火災で失った色彩|「鈴木空如」模写絵を未来へ
72%
- 現在
- 1,450,000円
- 寄付者
- 61人
- 残り
- 28日

救う命を選ばない。どんな犬猫も保護し続け福岡の里親さんを増やしたい
#動物
107%
- 現在
- 3,212,000円
- 支援者
- 303人
- 残り
- 14時間
最近見たプロジェクト
(特活)シェア=国際保健協力市民の会(SHARE)
柴千里(公益財団法人ジョイセフ)
はこぶねコミュニティ坂の上零
女優ユニット でべそ
mm
NPO@PRO|特定非営利活動法人NPO会計税務専門...
寿々乃舞
成立

中高生の健康な未来をつくる!東ティモール思春期保健プロジェクト
135%
- 寄付総額
- 6,113,000円
- 寄付者
- 332人
- 終了日
- 5/28

ネパールの女の子たちを性による差別や暴力から守りたい!
- 寄付総額
- 1,318,000円
- 寄付者
- 94人
- 終了日
- 6/12

こだわり生産者の情報を発信して安心安全な食環境を拡げたい!
- 支援総額
- 165,000円
- 支援者
- 11人
- 終了日
- 4/9
成立

初のプロデュース公演【拡がる世界の片隅で】を地元金沢で公演!
141%
- 支援総額
- 282,000円
- 支援者
- 12人
- 終了日
- 5/20
成立
保護猫ぷぅちゃんの手術費用
200%
- 支援総額
- 702,000円
- 支援者
- 206人
- 終了日
- 9/7
成立

寄付を拡げるために|実態調査をして認定NPO法人白書をつくりたい
182%
- 寄付総額
- 1,820,000円
- 寄付者
- 148人
- 終了日
- 4/5

多くの後押しで郡山市から一歩目を。チャリティコンサート開催へ
- 支援総額
- 768,000円
- 支援者
- 52人
- 終了日
- 2/28









